CAD频道
CAD图库
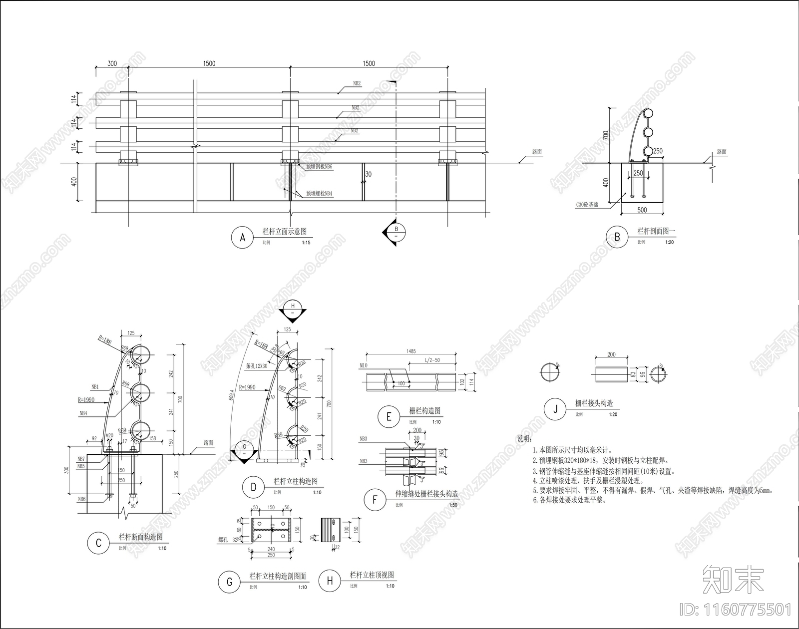
防撞护栏详图 施工图
1/
2
Previous
Next
防撞护栏详图CAD下载
ID: 1160775501
复制
上传作者
704564
上传时间
2024-05-17
文件大小
1.15M
设计风格:
--
CAD版本:
CAD2007
包含文件:
CAD
授权
普通
立即下载
收藏
分享
举报
相关推荐
综合
景观小品
栏杆
亭子
廊架
景墙
综合景观小品
雨棚
围墙
挡土墙
入口