1/3
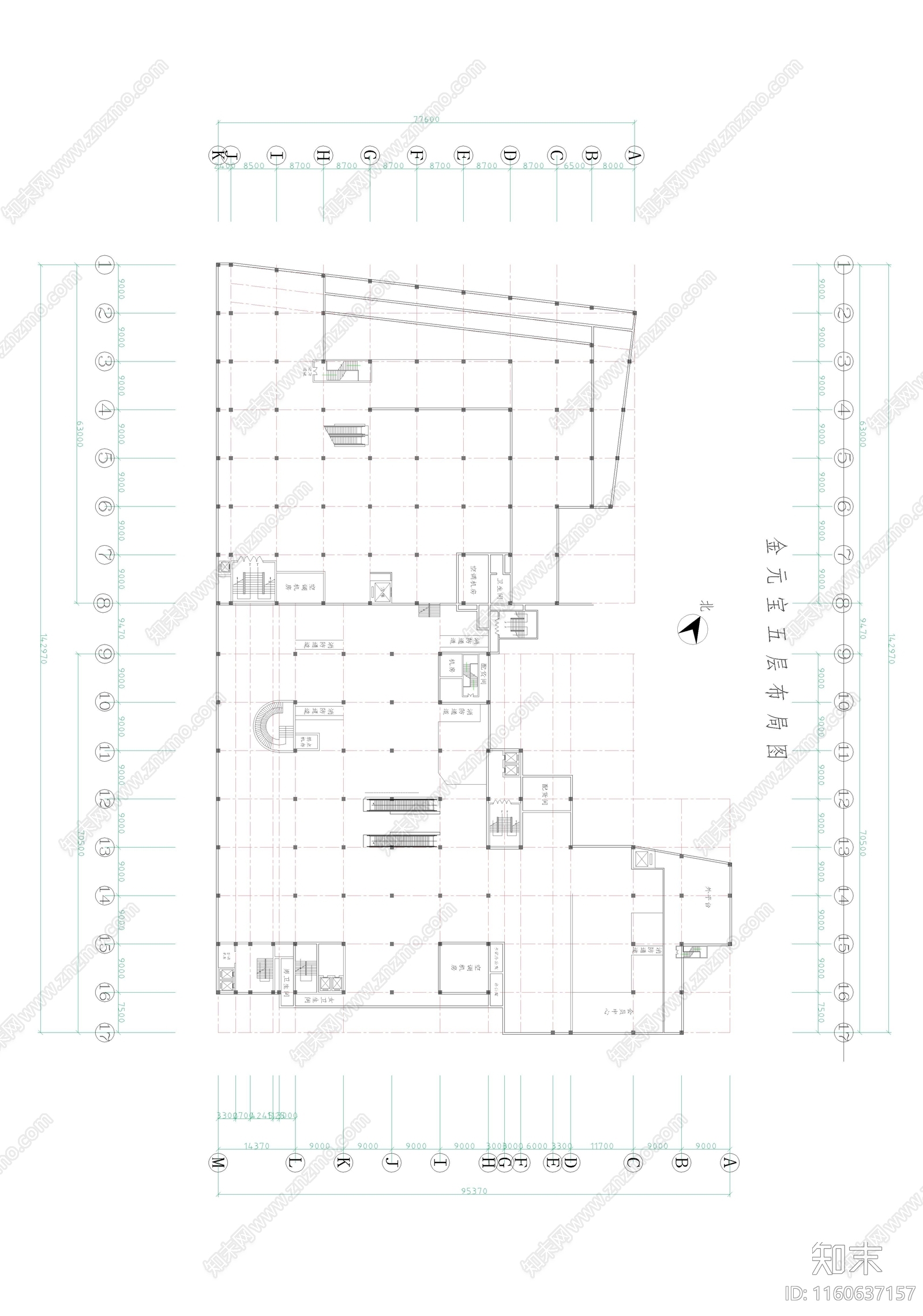
大型商场平面布局图施工图下载【ID:1160637157】

大型商场平面布局图CAD下载

ID: 1160637157
复制
上传作者
浏览器一号浏览器一号

上传时间2024-05-15

文件大小3M

设计风格:--

CAD版本:CAD2010

包含文件:CAD

授权普通

立即下载
收藏
分享
举报
相关推荐
综合
平面图
工装平面图
景观平面图
规划平面图
其他平面图
小区平面图