CAD频道
CAD图库
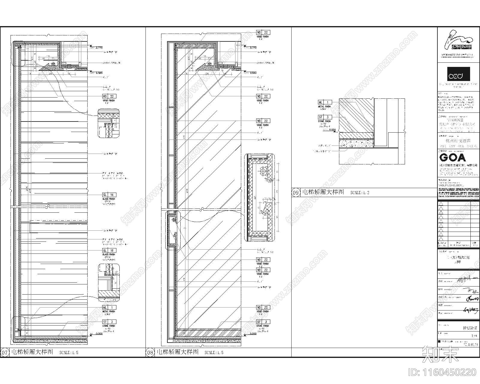
酒店公区电梯轿厢节点大样图 施工图
1/
2
Previous
Next
酒店公区电梯轿厢节点大样图CAD下载
ID: 1160450220
复制
上传作者
湫兮如风
上传时间
2024-05-13
文件大小
0.92M
设计风格:
--
CAD版本:
--
包含文件:
CAD
授权
独家
立即下载
收藏
分享
举报
相关推荐
综合
公共空间
电梯厅
其他公共空间
公共卫生间
宿舍
门头
服务中心
活动中心
会展
母婴室