1/5


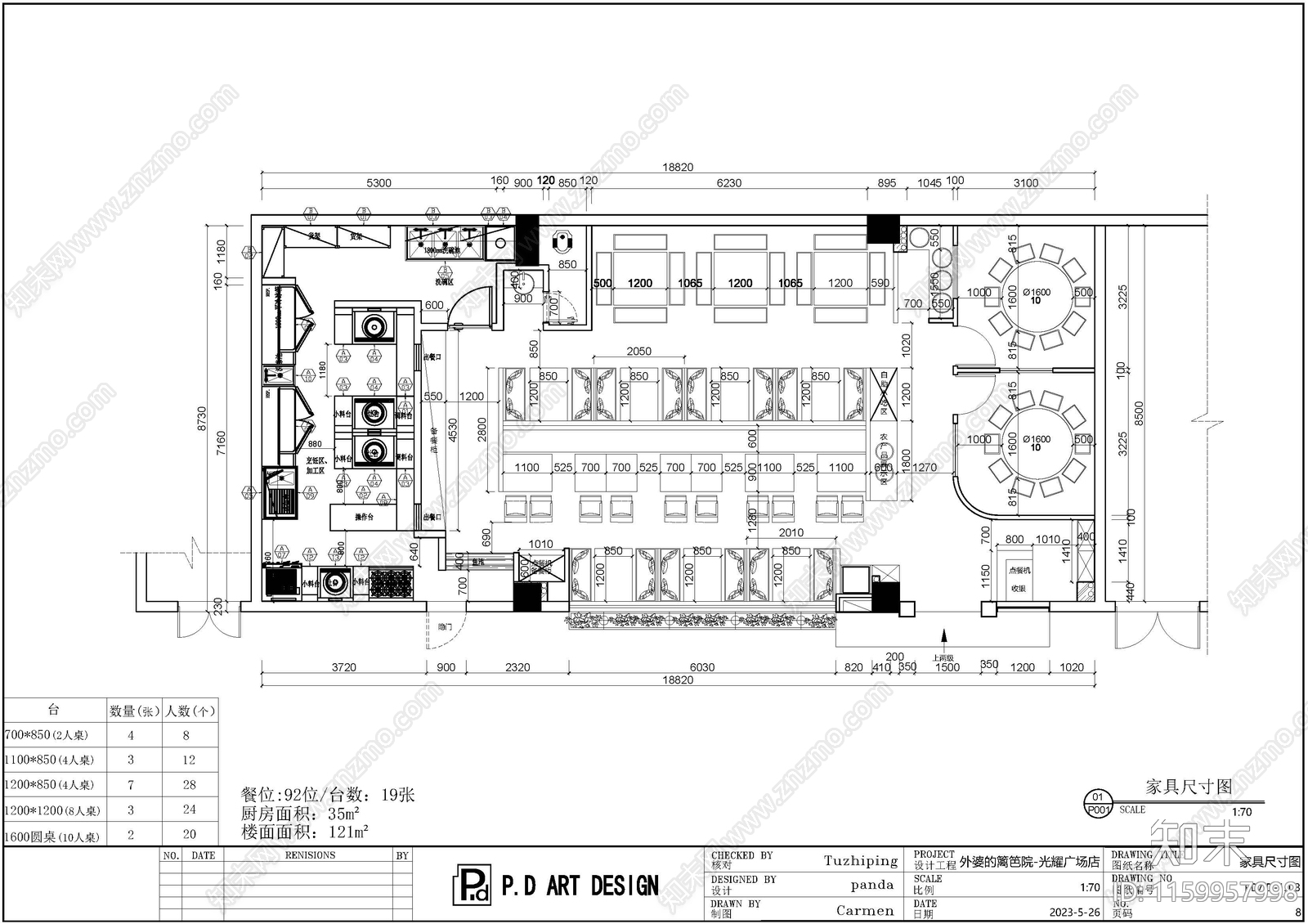
商场中餐厅CAD下载
ID: 1159957998
复制
上传作者
大白搬砖来了
大白搬砖来了上传时间2024-05-07
文件大小46.58M
设计风格:现代简约
CAD版本:CAD2004
包含文件:CAD
授权普通
立即下载
收藏
分享
举报
相关推荐
综合
餐饮空间
中餐厅
西餐厅
快餐店
自助餐厅
茶餐厅
其他餐饮空间
食堂
奶茶店
咖啡厅


大白搬砖来了上传时间2024-05-07
文件大小46.58M
设计风格:现代简约
CAD版本:CAD2004
包含文件:CAD
授权普通