
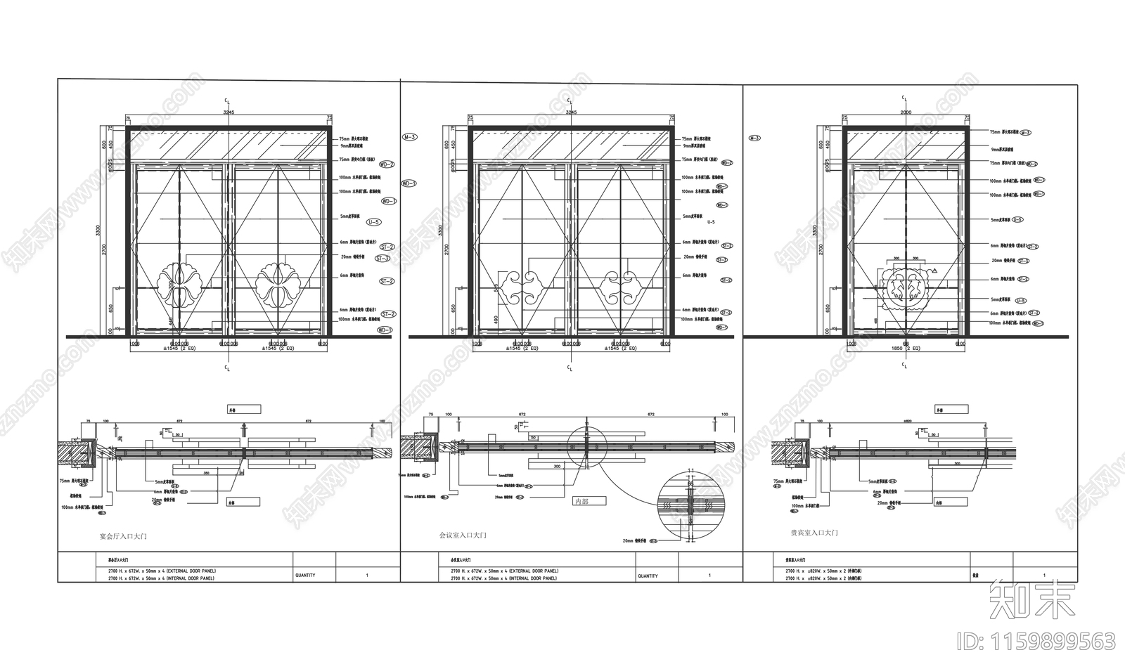
中式宴会厅会议室酒店大堂大门详图CAD下载
ID: 1159899563
复制
上传作者
oYMJ
oYMJ上传时间2024-05-06
文件大小0.14M
设计风格:现代简约
CAD版本:CAD2004
包含文件:CAD
授权独家
立即下载
收藏
分享
举报
相关推荐
综合
酒店
酒店大堂
酒店餐厅
酒店公区
酒店客房
酒店卫生间
酒店套房
酒店宴会厅
其他酒店

oYMJ上传时间2024-05-06
文件大小0.14M
设计风格:现代简约
CAD版本:CAD2004
包含文件:CAD
授权独家