1/6


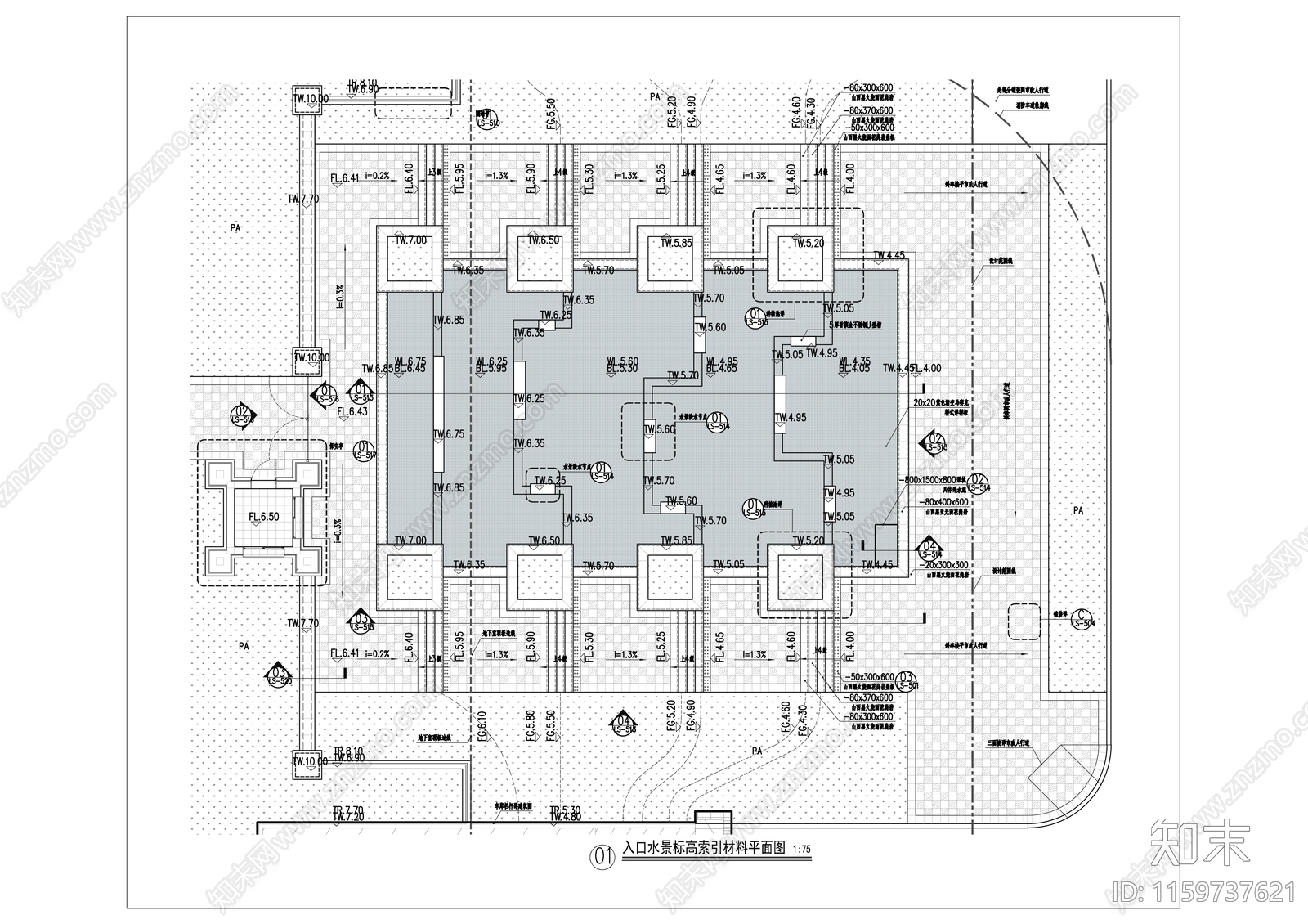
小区公园入口大型叠水水景CAD下载
ID: 1159737621
复制
上传作者
oYMJ
oYMJ上传时间2024-05-04
文件大小0.37M
设计风格:--
CAD版本:天正CAD8.0
包含文件:CAD
授权独家
立即下载
收藏
分享
举报
相关推荐
综合
节点详图
水景
吊顶节点
墙面节点
地面节点
门节点
其他节点详图
建筑工程节点
景观小品
楼梯节点


oYMJ上传时间2024-05-04
文件大小0.37M
设计风格:--
CAD版本:天正CAD8.0
包含文件:CAD
授权独家