CAD频道
CAD图库
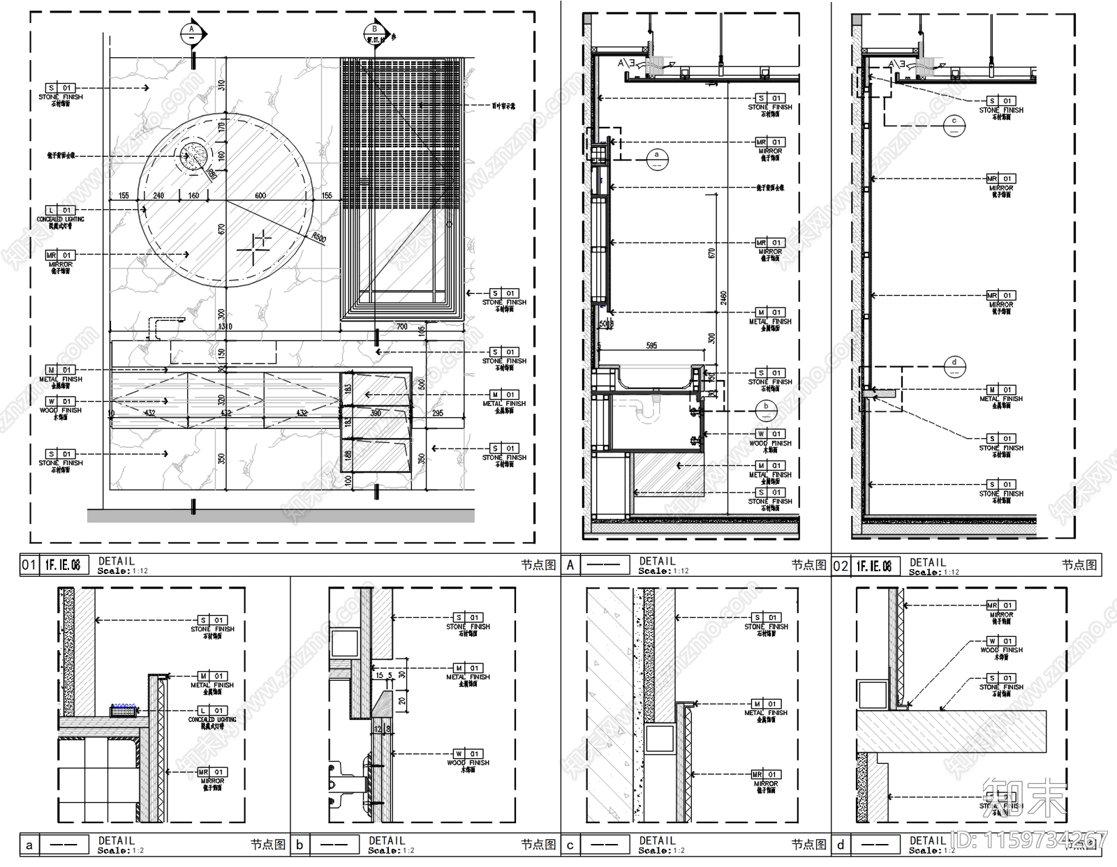
现代别墅卫生间通用节点 施工图
1/
6
Previous
Next
现代别墅卫生间通用节点CAD下载
ID: 1159734267
复制
上传作者
HAHA
上传时间
2024-05-04
文件大小
2.71M
设计风格:
--
CAD版本:
CAD2004
包含文件:
CAD
授权
独家
立即下载
收藏
分享
举报
相关推荐
综合
室内工艺节点
其他室内工艺节点