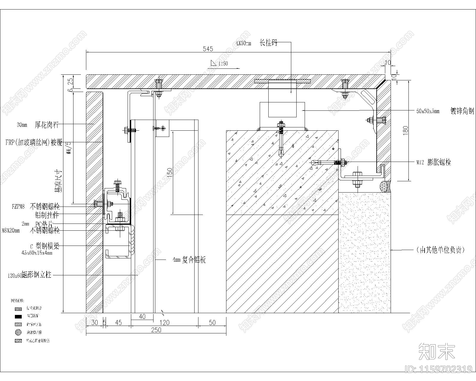
开放式石材幕墙节点5施工图下载【ID:1159702319】

开放式石材幕墙节点5CAD下载

ID: 1159702319
复制
上传作者
撞大墙啦撞大墙啦

上传时间2024-05-04

文件大小0.08M

设计风格:--

CAD版本:CAD2014

包含文件:CAD

授权普通

立即下载
收藏
分享
举报
相关推荐
综合
结构节点图
幕墙结构节点
桁架
钢结构节点
混凝土节点
转换层
其他结构设计