
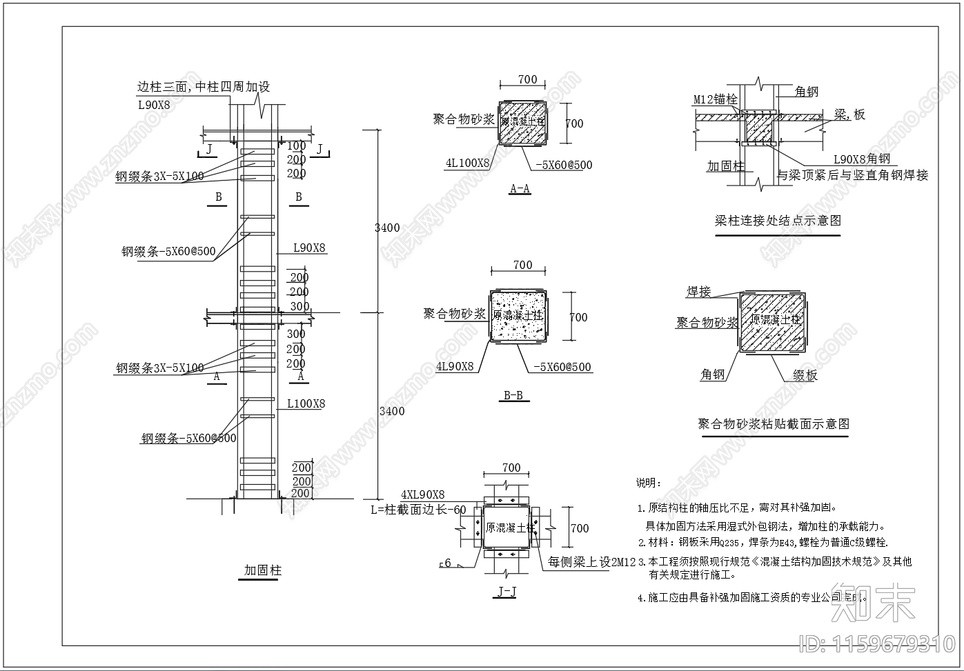
混凝土柱湿式外包钢法加固节点图CAD下载
ID: 1159679310
复制
上传作者
小小鱼鱼
小小鱼鱼上传时间2024-05-03
文件大小0.13M
设计风格:--
CAD版本:CAD2004
包含文件:CAD
授权独家
立即下载
收藏
分享
举报
相关推荐
综合
节点详图
包柱节点
吊顶节点
墙面节点
地面节点
门节点
其他节点详图
建筑工程节点
景观小品
楼梯节点

小小鱼鱼上传时间2024-05-03
文件大小0.13M
设计风格:--
CAD版本:CAD2004
包含文件:CAD
授权独家