CAD频道
CAD图库
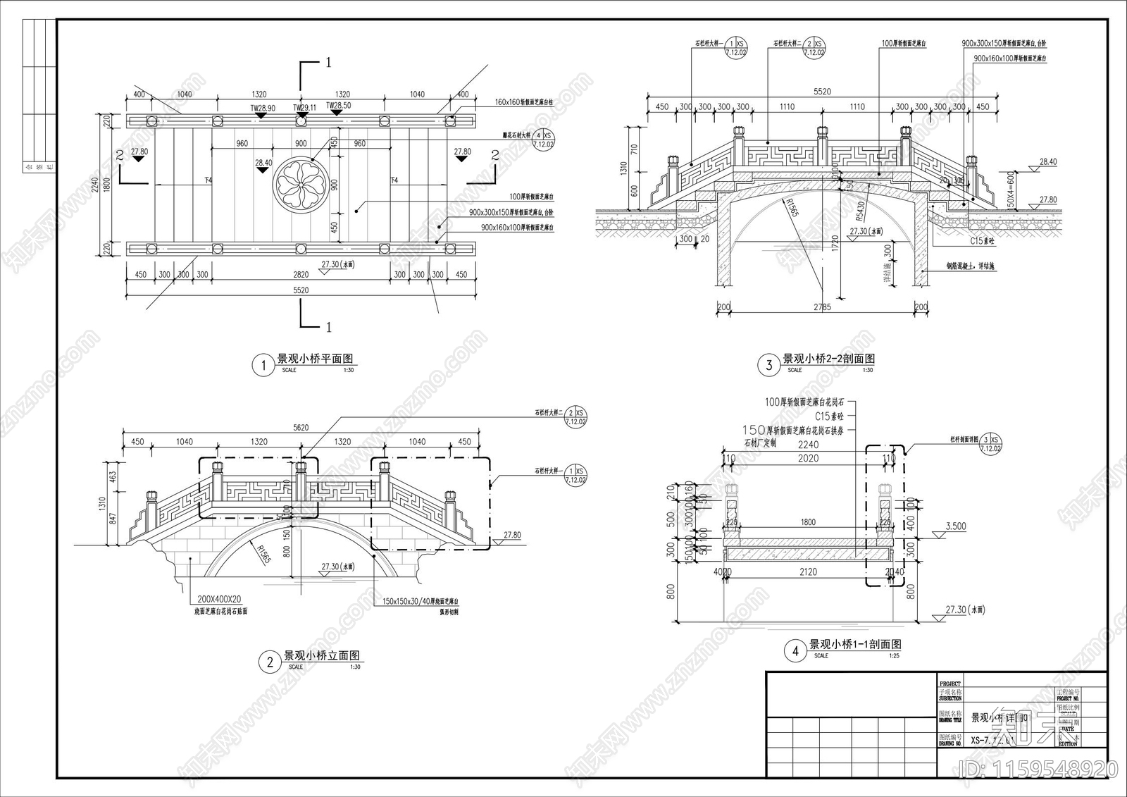
景观石拱桥节点 施工图
1/
3
Previous
Next
景观石拱桥节点CAD下载
ID: 1159548920
复制
上传作者
贾远方
上传时间
2024-04-30
文件大小
0.35M
设计风格:
现代简约
CAD版本:
CAD2008
包含文件:
CAD
授权
独家
立即下载
收藏
分享
举报
相关推荐
综合
景观小品
景观桥
亭子
廊架
景墙
综合景观小品
雨棚
围墙
挡土墙
入口