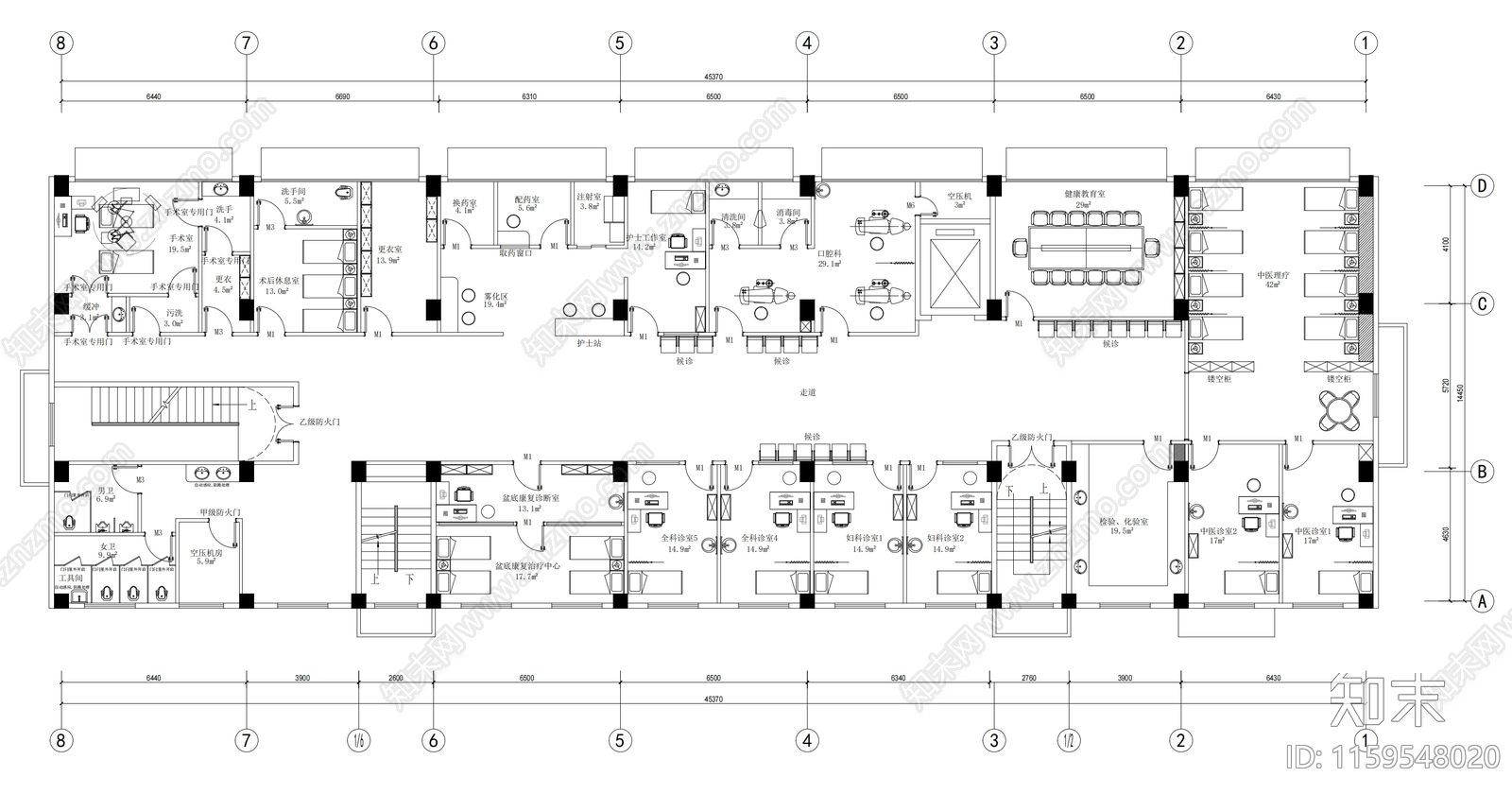
诊所平面布置图图纸施工图下载【ID:1159548020】

诊所平面布置图图纸CAD下载

ID: 1159548020
复制
上传作者
翅袅----加油翅袅----加油

上传时间2024-04-30

文件大小1.35M

设计风格:现代简约

CAD版本:CAD2013

包含文件:CAD

授权普通

立即下载
收藏
分享
举报
相关推荐
综合
平面图
工装平面图
景观平面图
规划平面图
其他平面图
小区平面图