
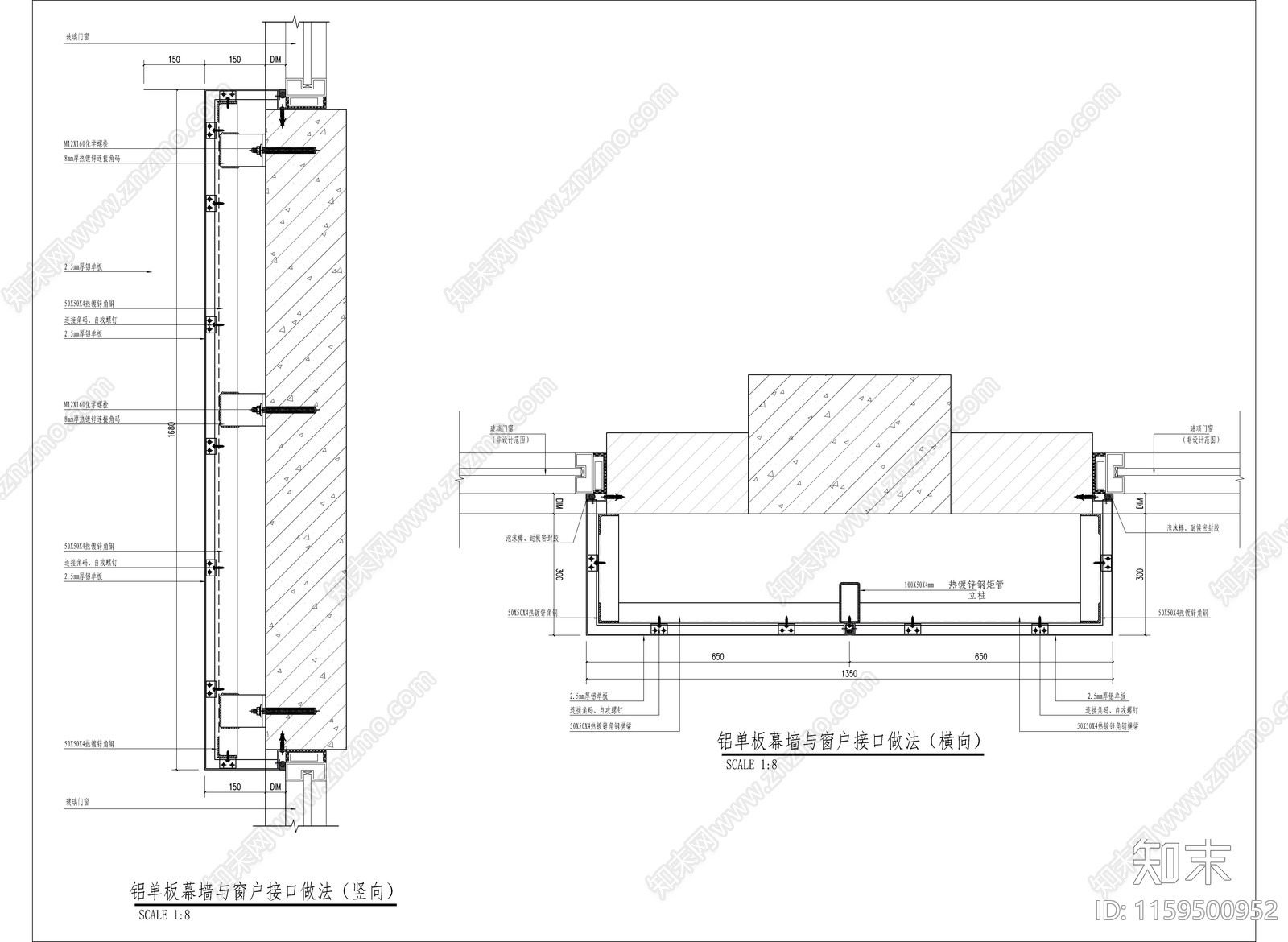
幕墙铝板与窗户收口做法CAD下载
ID: 1159500952
复制
上传作者
(盗模必追)节点图合集
(盗模必追)节点图合集上传时间2024-04-29
文件大小0.6M
设计风格:--
CAD版本:CAD2007
包含文件:CAD
授权独家
立即下载
收藏
分享
举报
相关推荐
综合
结构节点图
幕墙结构节点
桁架
钢结构节点
混凝土节点
转换层
其他结构设计

(盗模必追)节点图合集上传时间2024-04-29
文件大小0.6M
设计风格:--
CAD版本:CAD2007
包含文件:CAD
授权独家