CAD频道
CAD图库
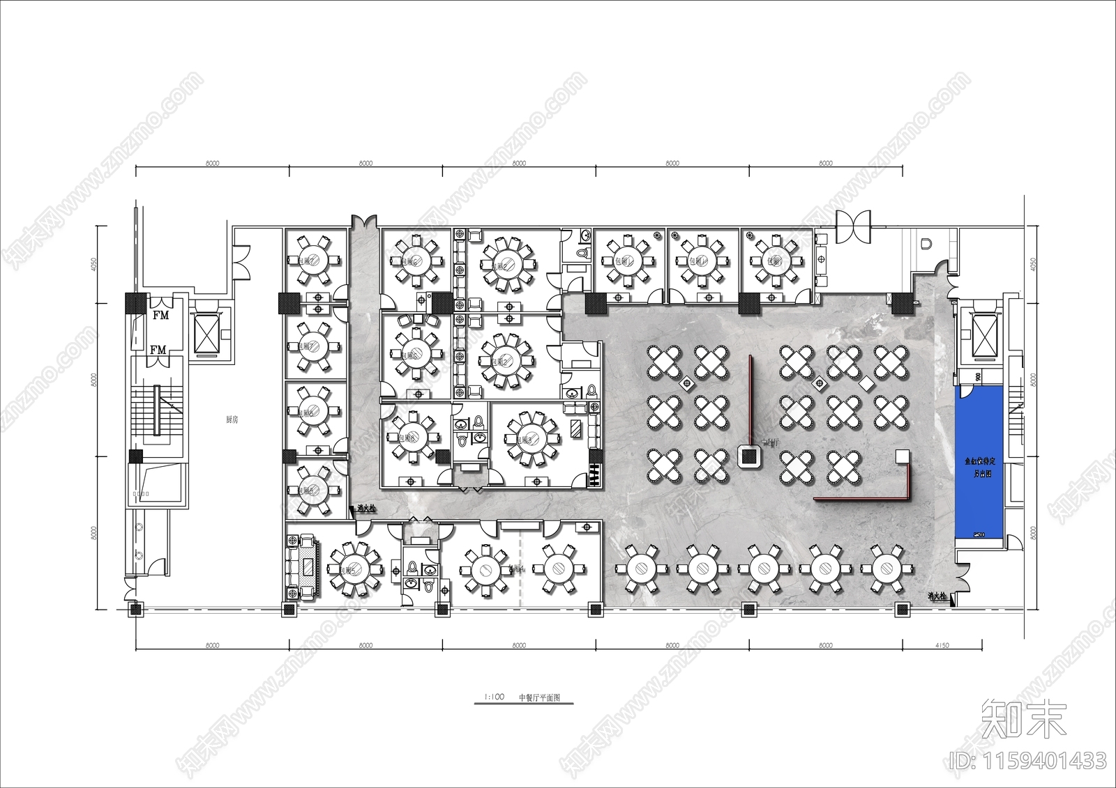
1000㎡海鲜大酒楼平面布置图 施工图
1/
2
Previous
Next
1000㎡海鲜大酒楼平面布置图CAD下载
ID: 1159401433
复制
上传作者
智取怂猫河
上传时间
2024-04-29
文件大小
4.28M
设计风格:
现代简约
CAD版本:
CAD2004
包含文件:
CAD
授权
普通
立即下载
收藏
分享
举报
相关推荐
综合
平面图
工装平面图
景观平面图
规划平面图
其他平面图
小区平面图