
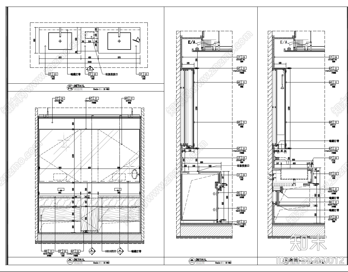
酒店洗手台节点大样图CAD下载
ID: 1159260012
复制
上传作者
23502405241722
23502405241722上传时间2024-04-27
文件大小1.28M
设计风格:--
CAD版本:CAD2015
包含文件:CAD
授权独家
立即下载
收藏
分享
举报
相关推荐
综合
卫浴节点
洗手台节点
地漏节点
镜子节点
淋浴房节点
拖把池节点
卫生间防水
卫生间排水
卫生间隔断
卫生间综合节点

23502405241722上传时间2024-04-27
文件大小1.28M
设计风格:--
CAD版本:CAD2015
包含文件:CAD
授权独家