1/4


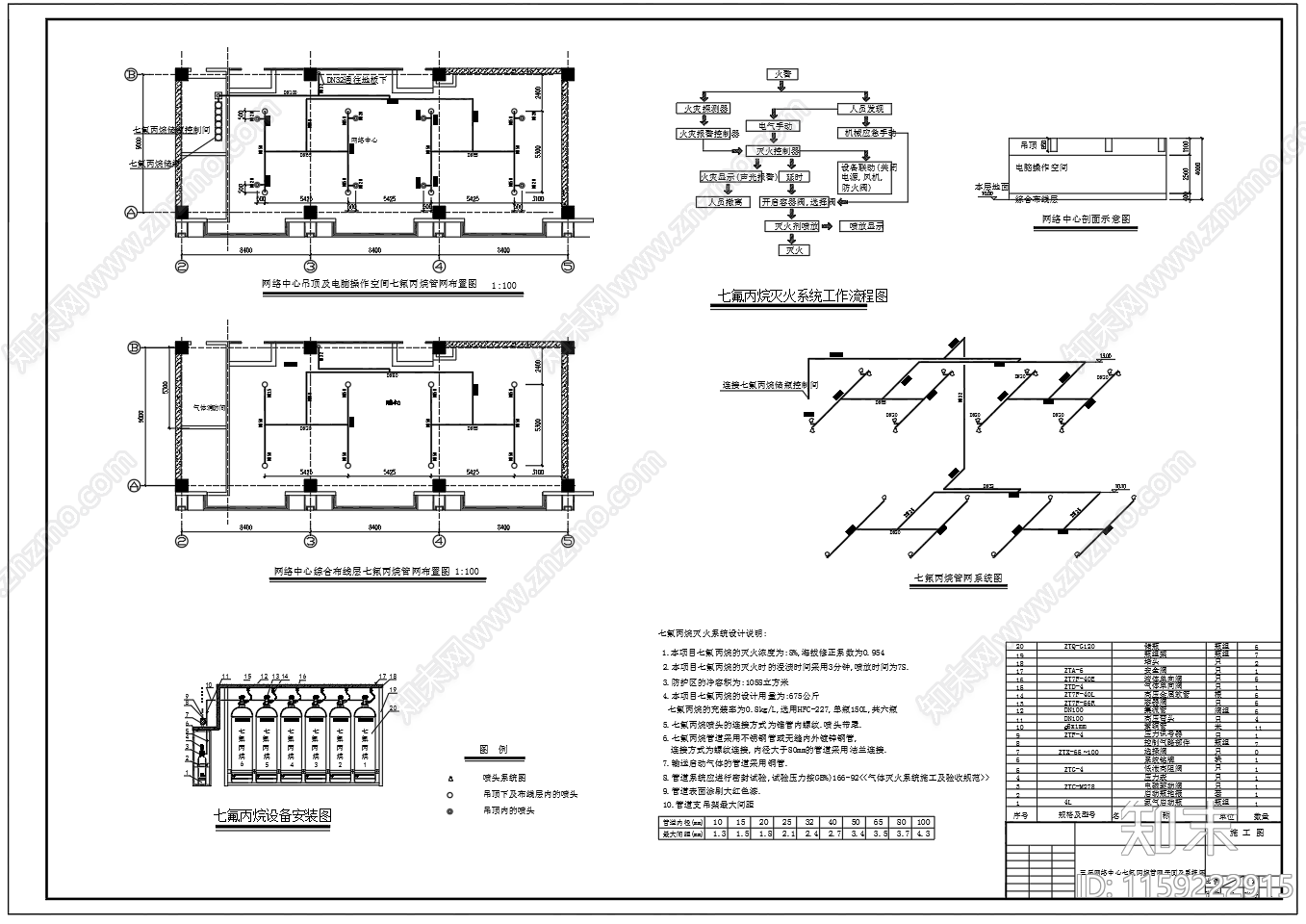
网络中心七氟丙烷灭火系统图CAD下载
ID: 1159222915
复制
上传作者
小小鱼鱼
小小鱼鱼上传时间2024-04-27
文件大小1.3M
设计风格:--
CAD版本:CAD2004
包含文件:CAD
授权独家
立即下载
收藏
分享
举报
相关推荐
综合
机电工程
消防设施
给排水图
水处理
暖通空调
电气图
电气工程节点
机械设备
其他机电图纸
建筑给排水


小小鱼鱼上传时间2024-04-27
文件大小1.3M
设计风格:--
CAD版本:CAD2004
包含文件:CAD
授权独家