1/3


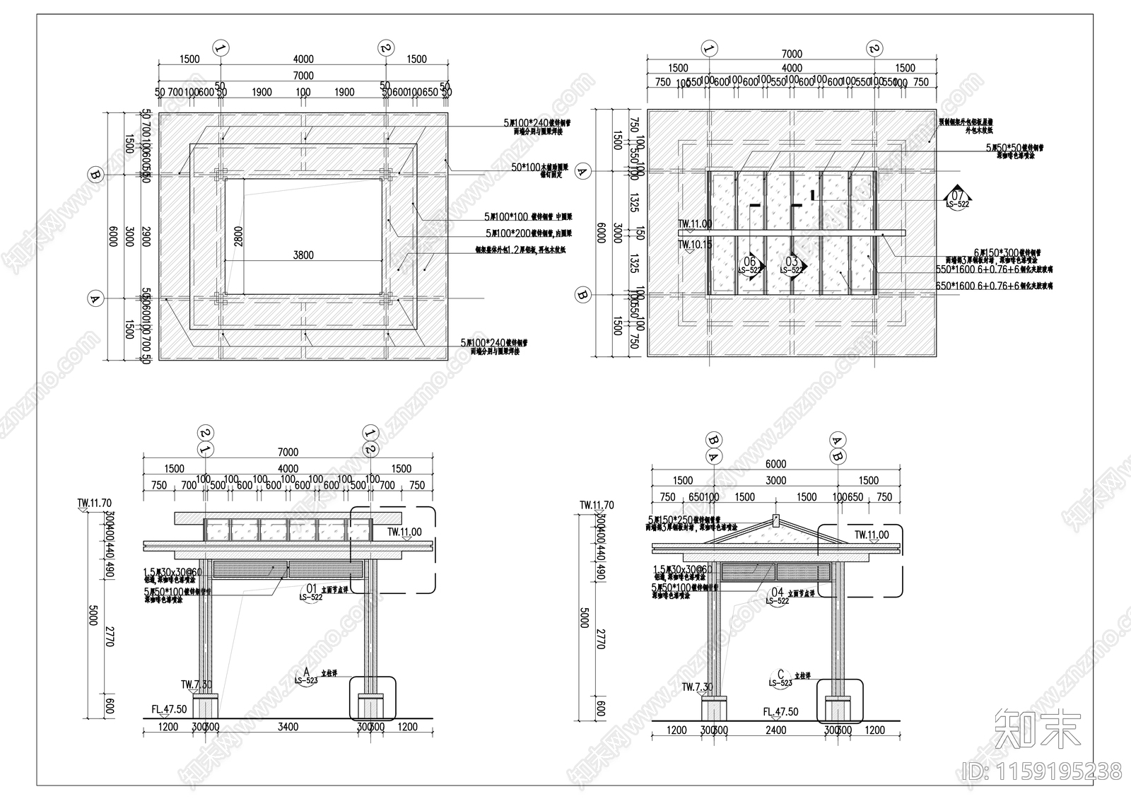
现代玻璃坡屋顶面亭廊做法详图CAD下载
ID: 1159195238
复制
上传作者
oYMJ
oYMJ上传时间2024-04-26
文件大小0.35M
设计风格:现代简约
CAD版本:天正CAD8.0
包含文件:CAD
授权独家
立即下载
收藏
分享
举报
相关推荐
综合
景观小品
亭子
廊架
景墙
综合景观小品
雨棚
围墙
挡土墙
入口
景观坐凳


oYMJ上传时间2024-04-26
文件大小0.35M
设计风格:现代简约
CAD版本:天正CAD8.0
包含文件:CAD
授权独家