
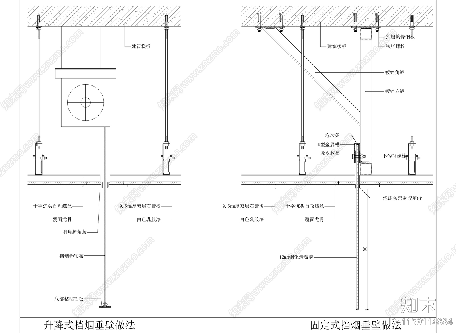
挡烟垂壁做法节点CAD下载
ID: 1159114884
复制
上传作者
(盗模必追)节点图合集
(盗模必追)节点图合集上传时间2024-04-25
文件大小1.92M
设计风格:--
CAD版本:CAD2007
包含文件:CAD
授权独家
立即下载
收藏
分享
举报
相关推荐
综合
吊顶节点
方通吊顶
格栅吊顶
扣板吊顶
软膜天花
铝单板吊顶
GRG吊顶节点
石膏板吊顶
矿棉板吊顶

(盗模必追)节点图合集上传时间2024-04-25
文件大小1.92M
设计风格:--
CAD版本:CAD2007
包含文件:CAD
授权独家