CAD频道
CAD图库
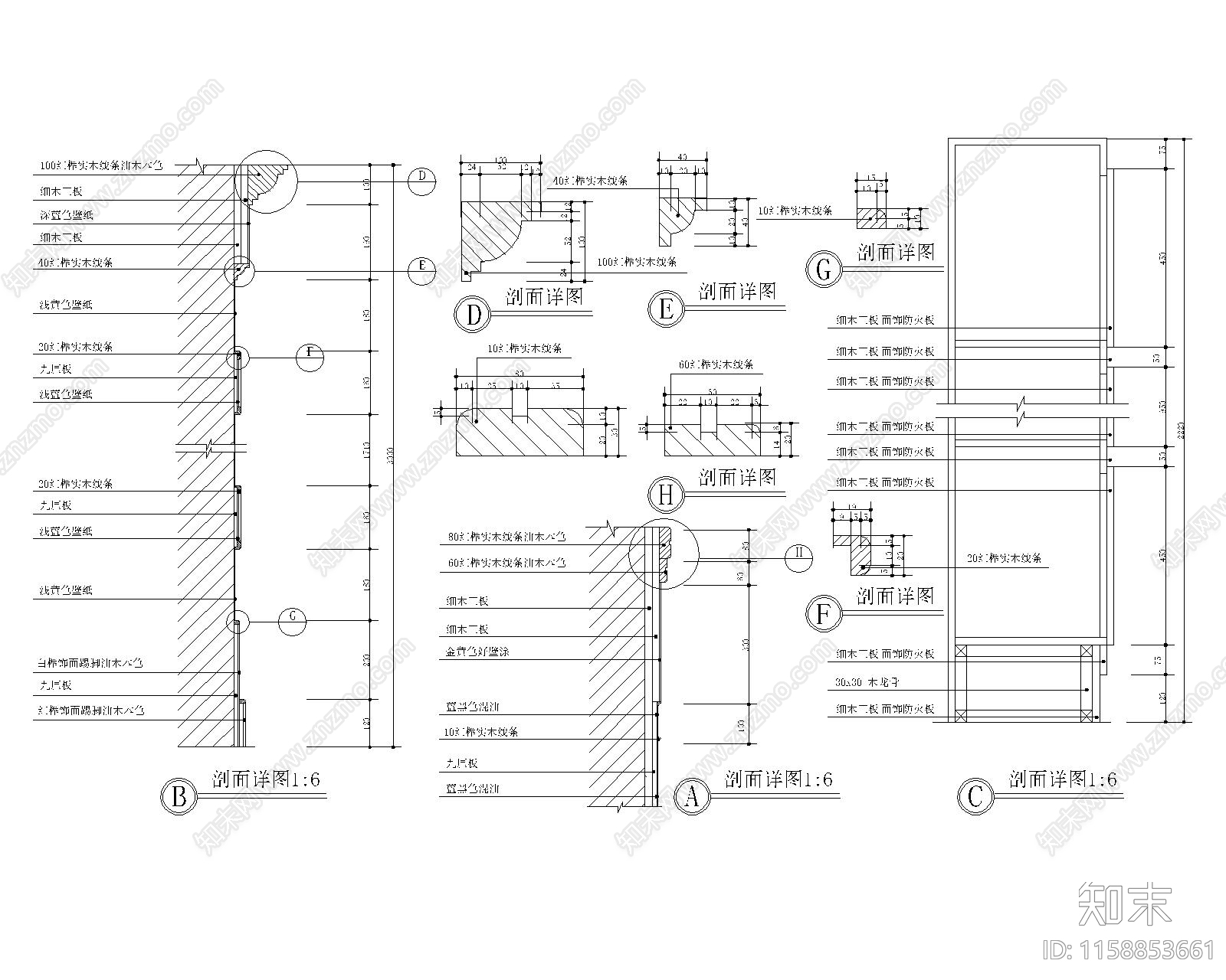
木饰面节点通用大样图 施工图 通用节点
1/
10
Previous
Next
木饰面节点通用大样图CAD下载
ID: 1158853661
复制
上传作者
笑傲容颜
上传时间
2024-04-23
文件大小
0.43M
设计风格:
--
CAD版本:
CAD2010
包含文件:
CAD
授权
独家
立即下载
收藏
分享
举报
相关推荐
综合
室内工艺节点
其他室内工艺节点