1/5


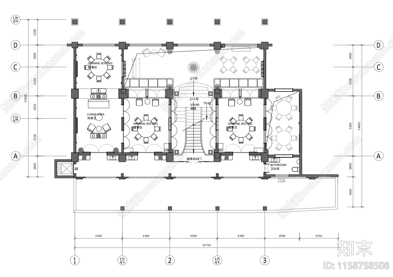
东南亚风情酒店餐厅CAD下载
ID: 1158758508
复制
上传作者
JyyykHR
JyyykHR上传时间2024-04-22
文件大小25.51M
设计风格:现代简约
CAD版本:CAD2010
包含文件:CAD
授权独家
立即下载
收藏
分享
举报
相关推荐
综合
商业建筑
其他商业建筑
售楼处建筑
商业街
商业综合体
农贸市场建筑
美食街
购物中心
餐饮建筑
娱乐建筑


JyyykHR上传时间2024-04-22
文件大小25.51M
设计风格:现代简约
CAD版本:CAD2010
包含文件:CAD
授权独家