CAD频道
CAD图库
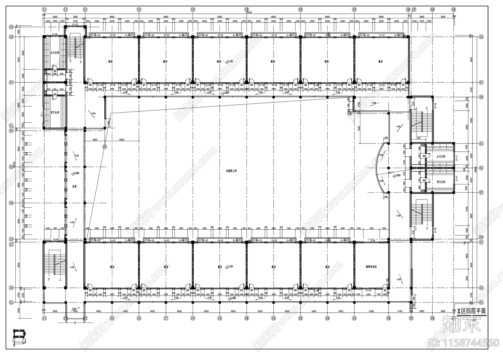
某回字形现代教学楼建筑 施工图
1/
10
Previous
Next
某回字形现代教学楼建筑CAD下载
ID: 1158744560
复制
上传作者
承诺不熬椰
上传时间
2024-04-22
文件大小
2.95M
设计风格:
现代简约
CAD版本:
CAD2004
包含文件:
CAD
授权
独家
立即下载
收藏
分享
举报
相关推荐
综合
教育建筑
学校建筑
幼儿园建筑