CAD频道
CAD图库
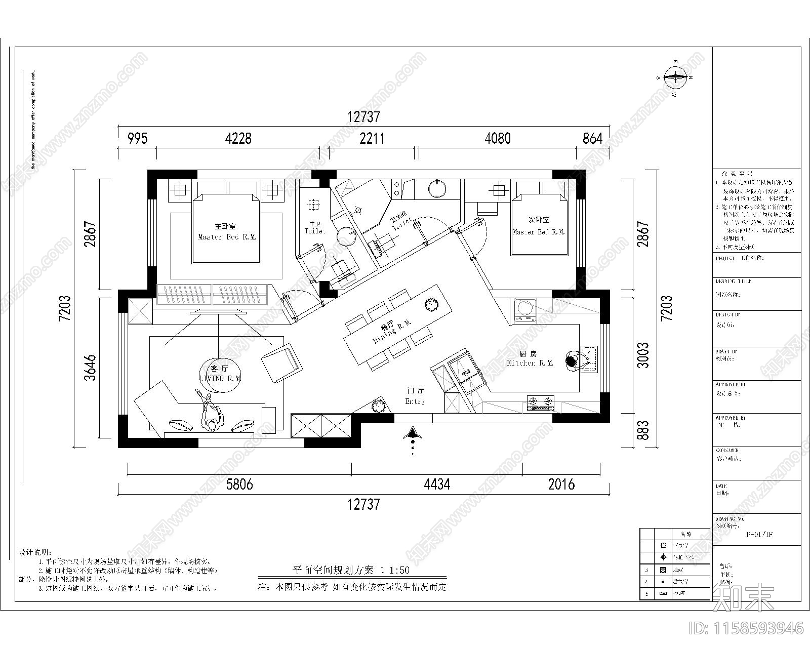
2套小户型85平多套设计方案 施工图 两室一厅 平层 家装平面图
1/
3
Previous
Next
2套小户型85平多套设计方案CAD下载
ID: 1158593946
复制
上传作者
郎知业鑫
上传时间
2024-04-20
文件大小
0.19M
设计风格:
现代简约
CAD版本:
CAD2018
包含文件:
CAD
授权
独家
立即下载
收藏
分享
举报
相关推荐
综合
平立面系统图
家装平面图
建筑平面图
平面图
立面图/剖面图