
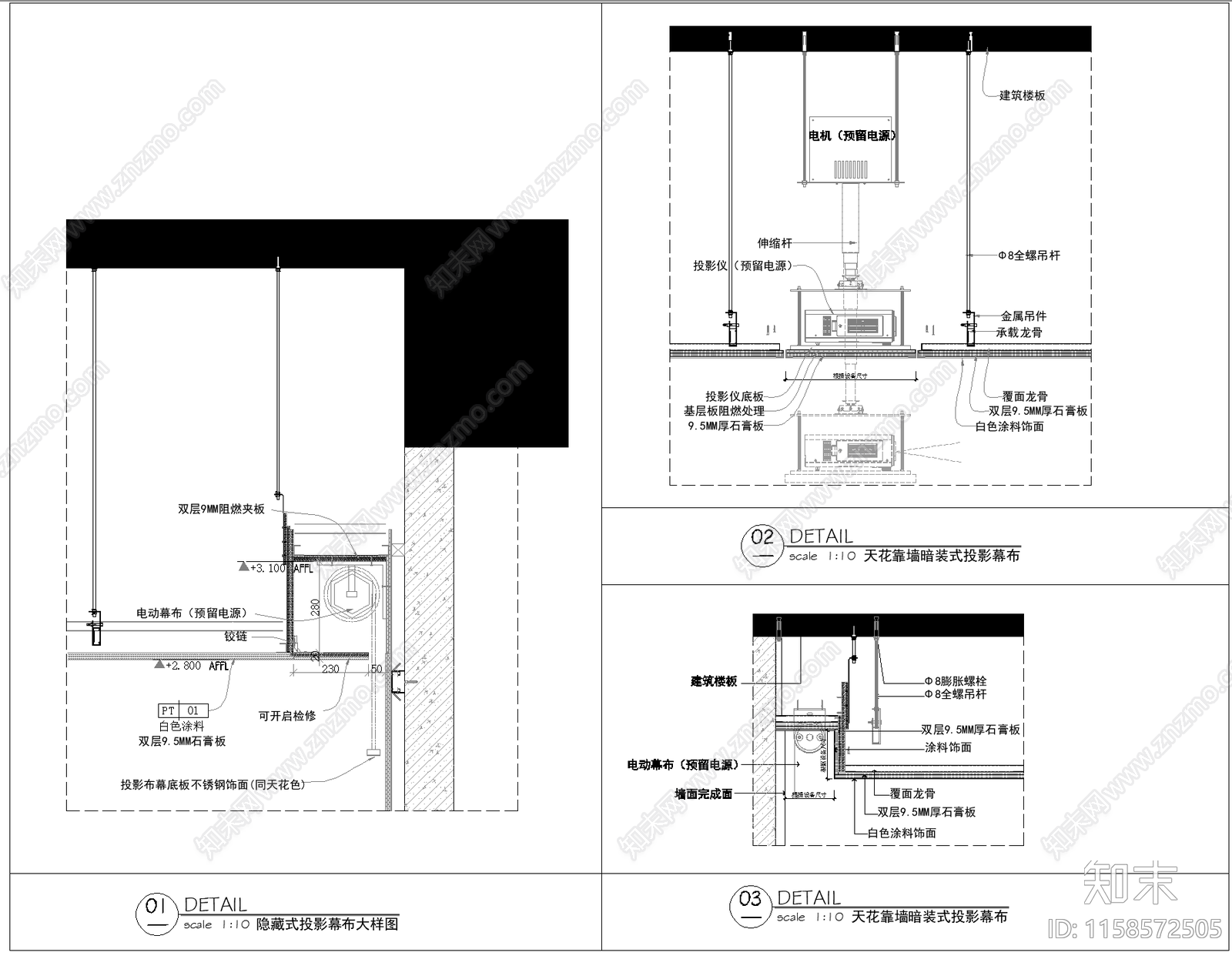
暗藏投影幕布天花大样CAD下载
ID: 1158572505
复制
上传作者
37103848
37103848上传时间2024-04-20
文件大小2.25M
设计风格:--
CAD版本:CAD2010
包含文件:CAD
授权独家
立即下载
收藏
分享
举报
相关推荐
综合
吊顶节点
方通吊顶
格栅吊顶
扣板吊顶
软膜天花
铝单板吊顶
GRG吊顶节点
石膏板吊顶
矿棉板吊顶

37103848上传时间2024-04-20
文件大小2.25M
设计风格:--
CAD版本:CAD2010
包含文件:CAD
授权独家