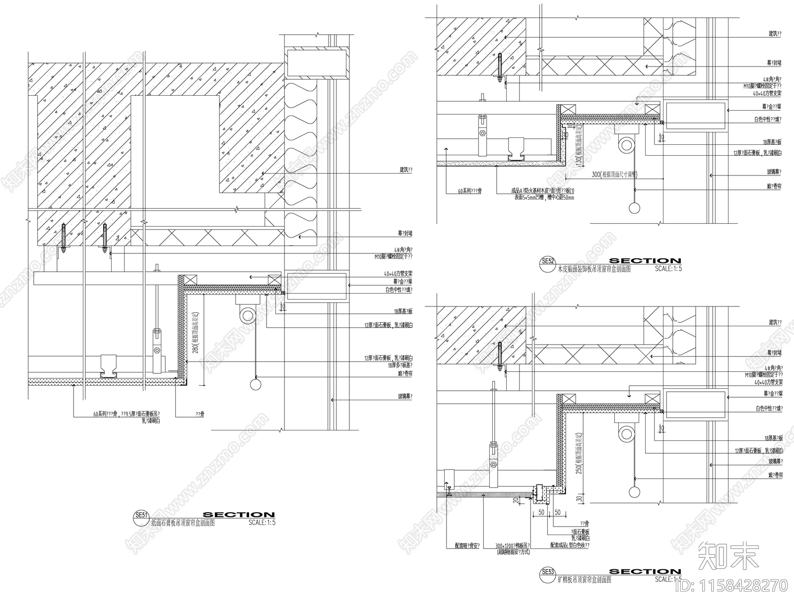
窗帘盒通用节点施工图下载【ID:1158428270】

窗帘盒通用节点CAD下载

ID: 1158428270
复制
上传作者
小小尘壑小小尘壑

上传时间2024-04-19

文件大小0.76M

设计风格:--

CAD版本:CAD2004

包含文件:CAD

授权独家

立即下载
收藏
分享
举报
相关推荐
综合
软装摆件图库
窗帘
地毯
综合软装摆件图库
珠宝首饰
佛龛佛像
摆件
玩具
镜子