CAD频道
CAD图库
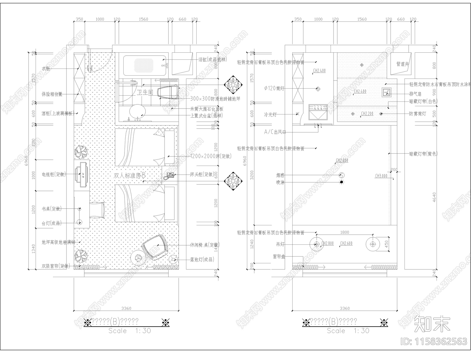
酒店双人标间 客房装修详图 平立面图 剖面节点大样图 施工图 客房
1/
3
Previous
Next
酒店双人标间CAD下载
ID: 1158362563
复制
上传作者
大有可为
上传时间
2024-04-18
文件大小
1.11M
设计风格:
现代简约
CAD版本:
CAD2004
包含文件:
CAD
授权
独家
立即下载
收藏
分享
举报
相关推荐
综合
酒店
酒店客房
酒店餐厅
酒店大堂
酒店公区
酒店卫生间
酒店套房
酒店宴会厅
其他酒店