1/10


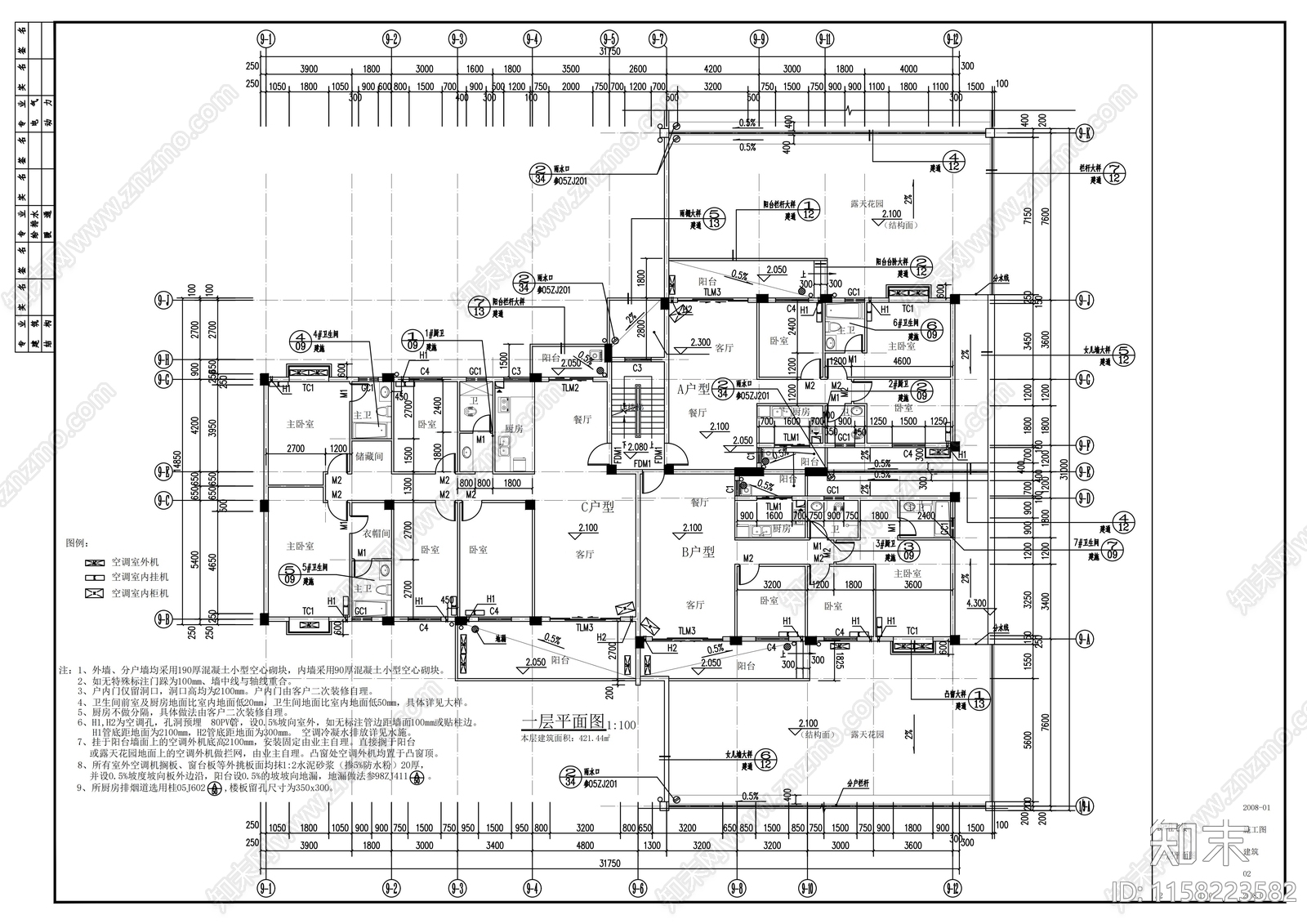
六层框架商品住宅楼建筑结构水电CAD下载
ID: 1158223582
复制
上传作者
常威打来福
常威打来福上传时间2024-04-17
文件大小20.34M
设计风格:--
CAD版本:天正CAD6.0
包含文件:CAD
授权独家
立即下载
收藏
分享
举报
相关推荐
综合
机电工程
电气图
给排水图
水处理
暖通空调
电气工程节点
消防设施
机械设备
其他机电图纸
建筑给排水


常威打来福上传时间2024-04-17
文件大小20.34M
设计风格:--
CAD版本:天正CAD6.0
包含文件:CAD
授权独家