CAD频道
CAD图库
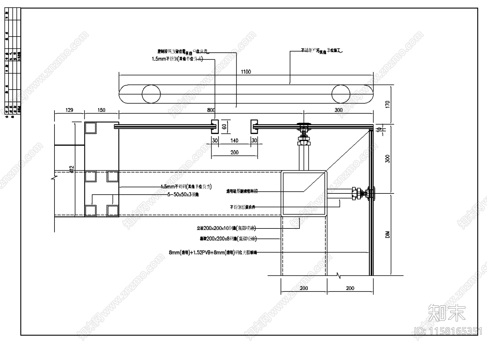
大型体育馆电梯幕墙节点大样 施工图 节点 结构节点图
1/
7
Previous
Next
大型体育馆电梯幕墙节点大样CAD下载
ID: 1158165351
复制
上传作者
天选搬砖
上传时间
2024-04-16
文件大小
0.7M
设计风格:
--
CAD版本:
CAD2014
包含文件:
CAD
授权
独家
立即下载
收藏
分享
举报
相关推荐
综合
结构节点图
幕墙结构节点
桁架
钢结构节点
混凝土节点
转换层
其他结构设计