1/7


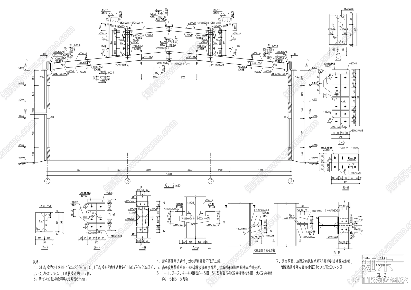
某经典单层钢结构厂房结施图CAD下载
ID: 1158023462
复制
上传作者
天选搬砖
天选搬砖上传时间2024-04-15
文件大小0.53M
设计风格:--
CAD版本:CAD2014
包含文件:CAD
授权独家
立即下载
收藏
分享
举报
相关推荐
综合
办公工业建筑
厂房
产业园建筑
办公楼建筑
其他办公建筑
政府办公楼
企业总部大厦
科研办公楼
金融办公建筑
研发中心


天选搬砖上传时间2024-04-15
文件大小0.53M
设计风格:--
CAD版本:CAD2014
包含文件:CAD
授权独家