CAD频道
CAD图库
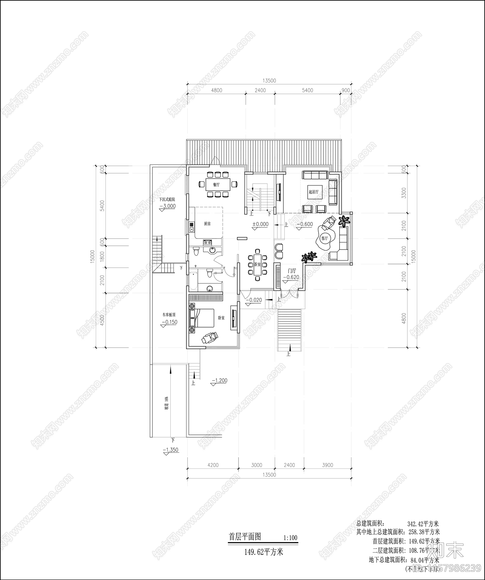
340平米别墅平面图 施工图 三层别墅 家装平面图
1/
2
Previous
Next
340平米别墅平面图CAD下载
ID: 1157986239
复制
上传作者
萍萍
上传时间
2024-04-14
文件大小
0.15M
设计风格:
现代简约
CAD版本:
CAD2014
包含文件:
CAD
授权
普通
立即下载
收藏
分享
举报
相关推荐
综合
平立面系统图
家装平面图
建筑平面图
平面图
立面图/剖面图