CAD频道
CAD图库
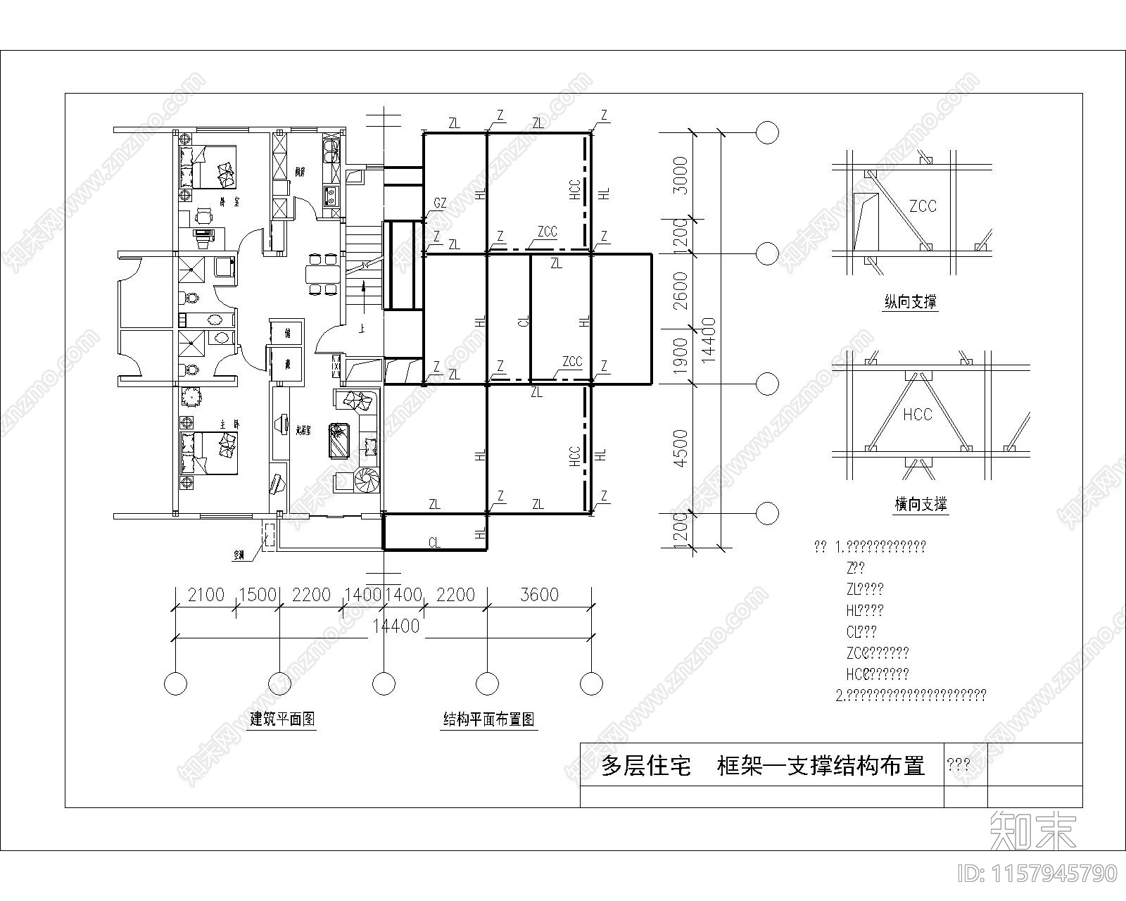
多层住宅钢结构框架 支撑结构布置节点详图 施工图 节点 结构节点图
多层住宅钢结构框架CAD下载
ID: 1157945790
复制
上传作者
撞大墙啦
上传时间
2024-04-14
文件大小
0.45M
设计风格:
--
CAD版本:
CAD2014
包含文件:
CAD
授权
普通
立即下载
收藏
分享
举报
相关推荐
综合
结构节点图
钢结构节点
桁架
混凝土节点
幕墙结构节点
转换层
其他结构设计