
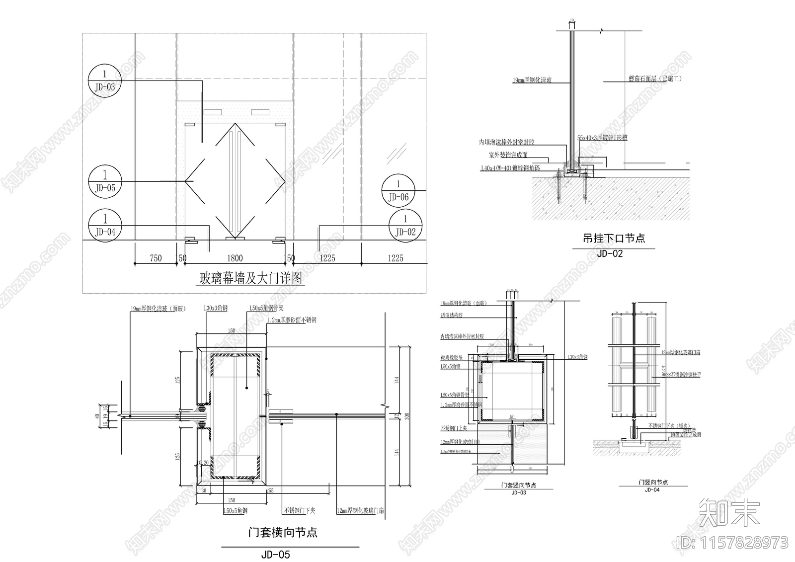
玻璃幕墙及大门详图及大门做法详图CAD下载
ID: 1157828973
复制
上传作者
听风雨平心境(互)
听风雨平心境(互)上传时间2024-04-12
文件大小0.44M
设计风格:--
CAD版本:CAD2004
包含文件:CAD
授权独家
立即下载
收藏
分享
举报
相关推荐
综合
结构节点图
幕墙结构节点
桁架
钢结构节点
混凝土节点
转换层
其他结构设计

听风雨平心境(互)上传时间2024-04-12
文件大小0.44M
设计风格:--
CAD版本:CAD2004
包含文件:CAD
授权独家