
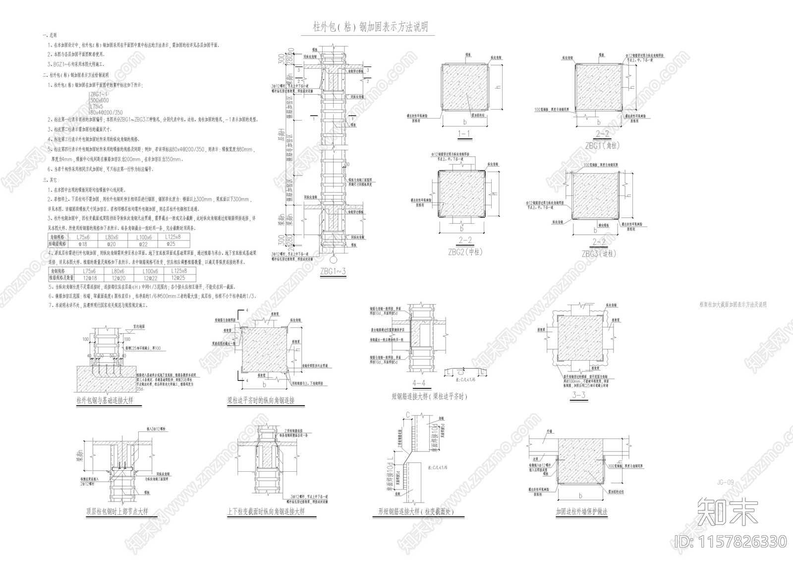
柱外包钢加固表示方法说明01CAD下载
ID: 1157826330
复制
上传作者
不良人(粉必回)
不良人(粉必回)上传时间2024-04-12
文件大小0.12M
设计风格:--
CAD版本:CAD2004
包含文件:CAD
授权独家
立即下载
收藏
分享
举报
相关推荐
综合
结构设计
混凝土结构
钢结构
幕墙结构
砌体结构
木结构
结构节点图
其他结构图纸

不良人(粉必回)上传时间2024-04-12
文件大小0.12M
设计风格:--
CAD版本:CAD2004
包含文件:CAD
授权独家