CAD频道
CAD图库
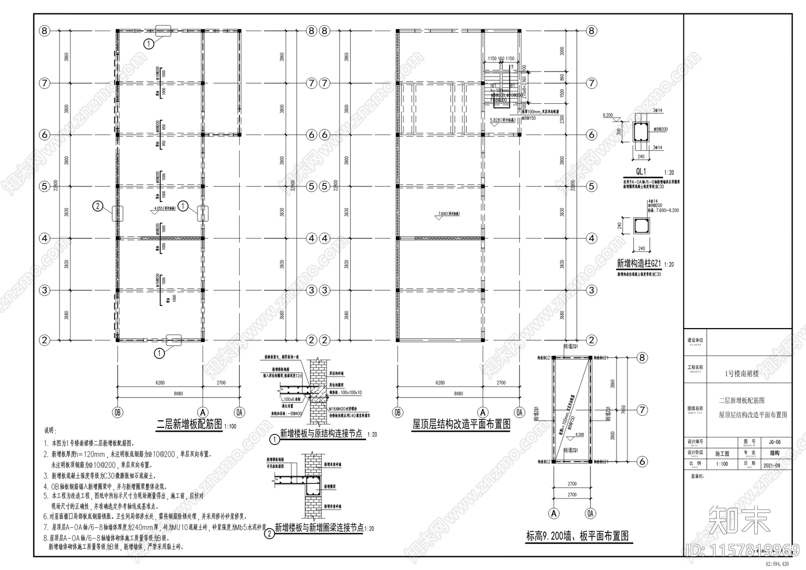
裙房抗震加固结构 施工图
1/
6
Previous
Next
裙房抗震加固结构CAD下载
ID: 1157819969
复制
上传作者
香格里拉
上传时间
2024-04-12
文件大小
0.35M
设计风格:
--
CAD版本:
CAD2012
包含文件:
CAD
授权
独家
立即下载
收藏
分享
举报
相关推荐
综合
结构设计
混凝土结构
钢结构
幕墙结构
砌体结构
木结构
结构节点图
其他结构图纸