CAD频道
CAD图库
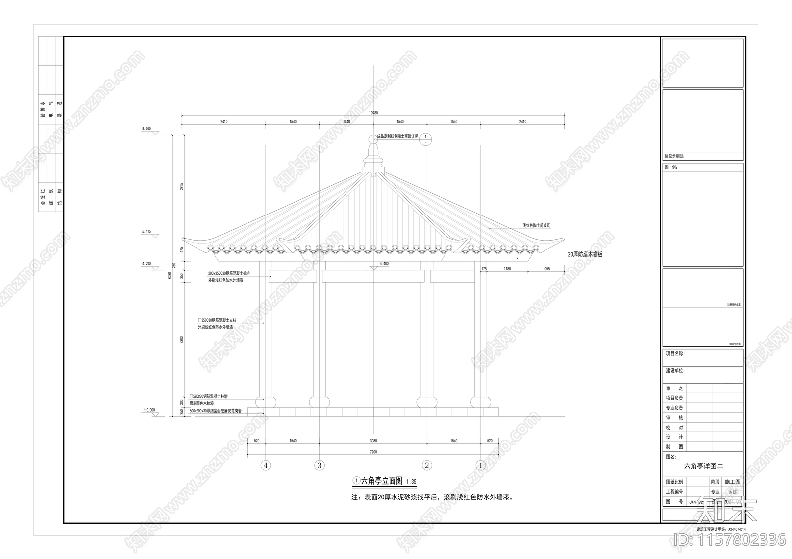
六角亭大样详图 t3 施工图
1/
6
Previous
Next
六角亭大样详图CAD下载
ID: 1157802336
复制
上传作者
E兔小生
上传时间
2024-04-12
文件大小
0.22M
设计风格:
--
CAD版本:
天正CAD3.0
包含文件:
CAD
授权
独家
立即下载
收藏
分享
举报
相关推荐
综合
景观小品
亭子
廊架
景墙
综合景观小品
雨棚
围墙
挡土墙
入口
景观坐凳