1/6


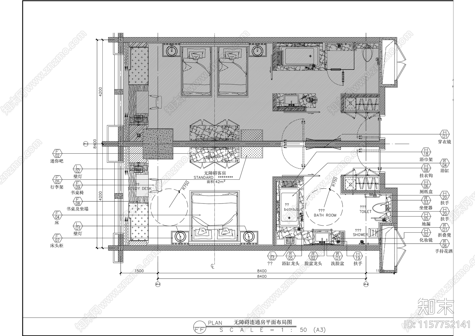
精品酒店无障碍大床房室内精装修CAD下载
ID: 1157752141
复制
上传作者
MEDUSA
MEDUSA上传时间2024-04-11
文件大小2.88M
设计风格:
CAD版本:CAD2004
包含文件:CAD
授权独家
立即下载
收藏
分享
举报
相关推荐
综合
酒店
酒店客房
酒店餐厅
酒店大堂
酒店公区
酒店卫生间
酒店套房
酒店宴会厅
其他酒店


MEDUSA上传时间2024-04-11
文件大小2.88M
设计风格:
CAD版本:CAD2004
包含文件:CAD
授权独家