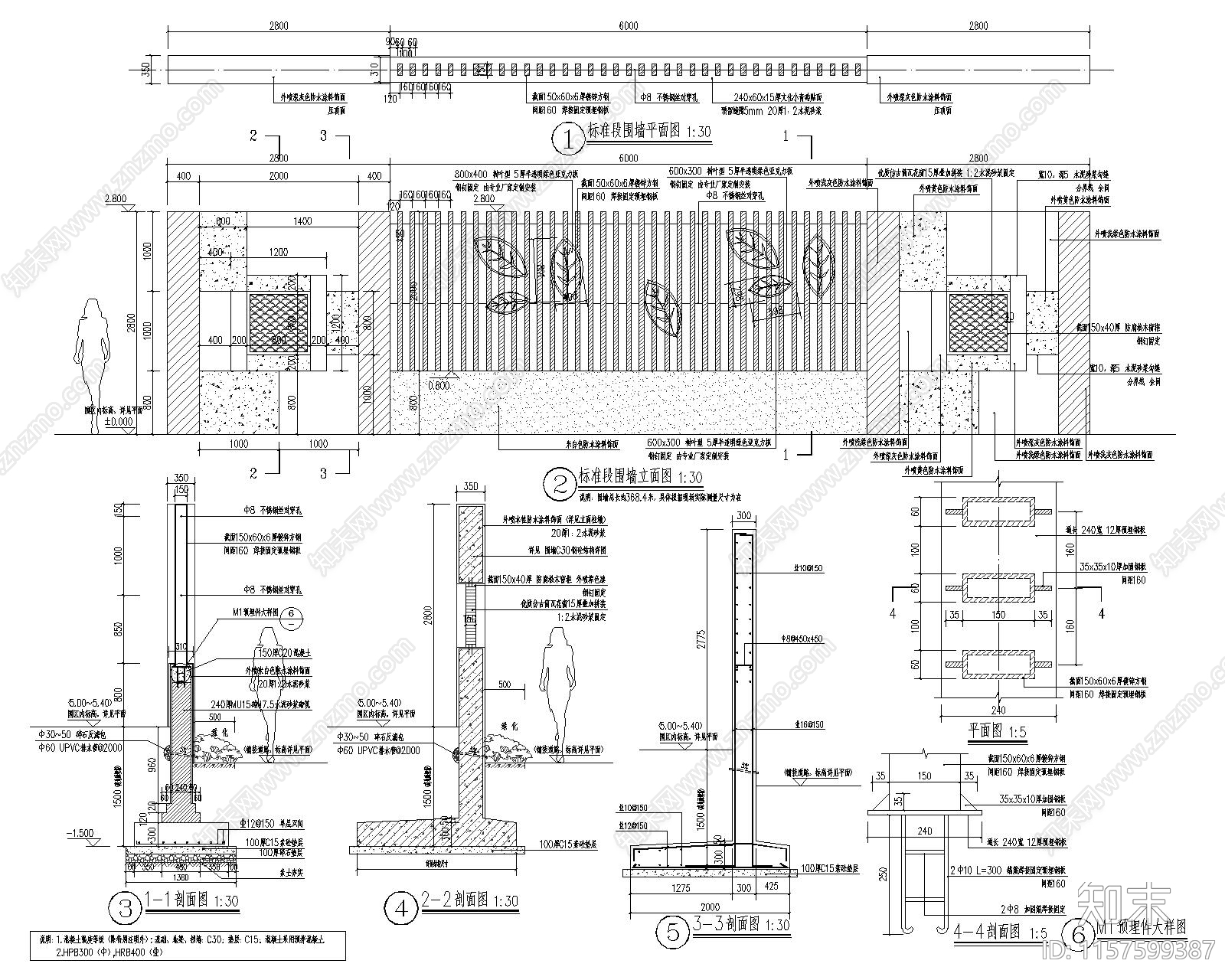
幼儿园围墙详图施工图下载【ID:1157599387】

幼儿园围墙详图CAD下载

ID: 1157599387
复制
上传作者
园林景观施工图园林景观施工图

上传时间2024-04-10

文件大小0.27M

设计风格:--

CAD版本:CAD2014

包含文件:CAD

授权独家

立即下载
收藏
分享
举报
相关推荐
综合
景观小品
围墙
亭子
廊架
景墙
综合景观小品
雨棚
挡土墙
入口
景观坐凳