1/2


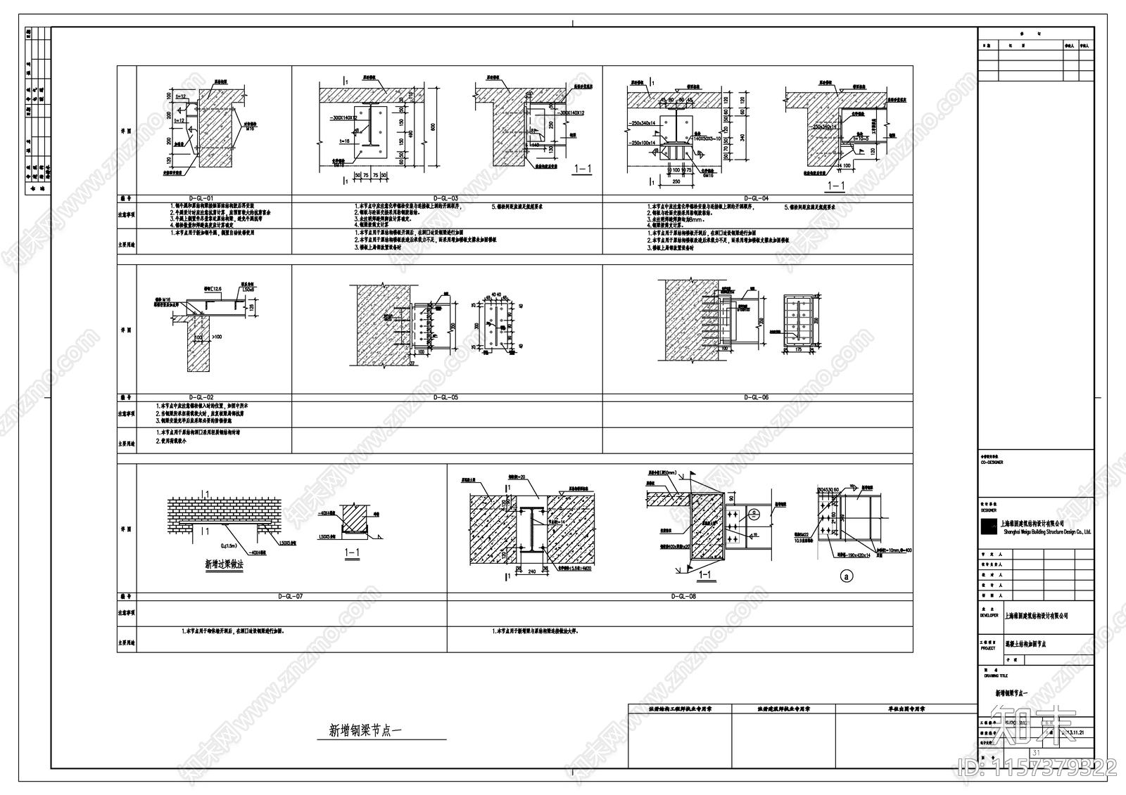
加固新增钢梁节点CAD下载
ID: 1157379322
复制
上传作者
景观施工图互粉
景观施工图互粉上传时间2024-04-07
文件大小1.55M
设计风格:--
CAD版本:CAD2007
包含文件:CAD
授权独家
立即下载
收藏
分享
举报
相关推荐
综合
节点详图
梁节点
吊顶节点
墙面节点
地面节点
门节点
其他节点详图
建筑工程节点
景观小品
楼梯节点


景观施工图互粉上传时间2024-04-07
文件大小1.55M
设计风格:--
CAD版本:CAD2007
包含文件:CAD
授权独家