CAD频道
CAD图库
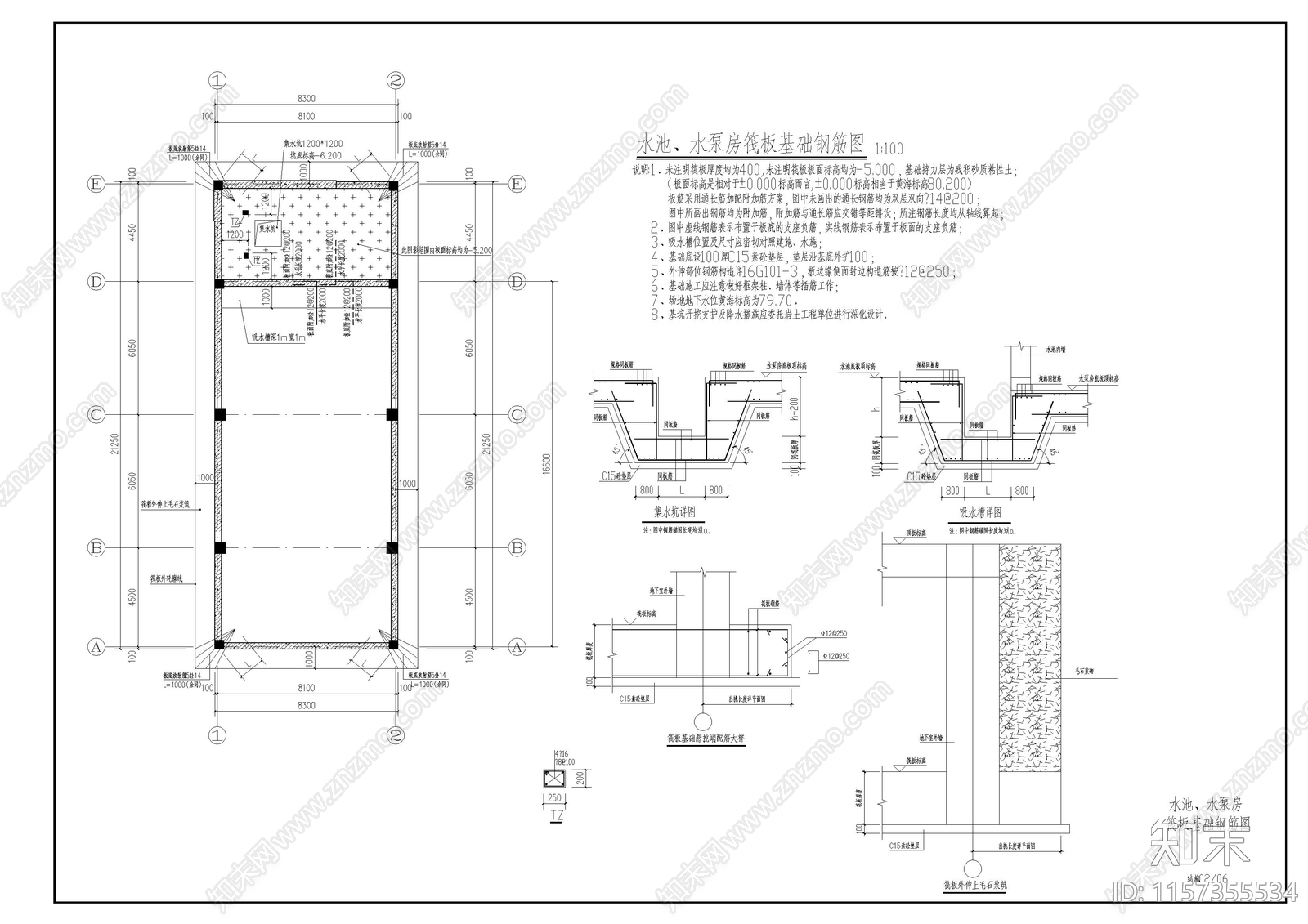
消防水池及泵房结施 施工图
1/
6
Previous
Next
消防水池及泵房结施CAD下载
ID: 1157355534
复制
上传作者
QQQQ
上传时间
2024-04-07
文件大小
0.22M
设计风格:
--
CAD版本:
天正CAD6.0
包含文件:
CAD
授权
独家
立即下载
收藏
分享
举报
相关推荐
综合
结构设计
混凝土结构
钢结构
幕墙结构
砌体结构
木结构
结构节点图
其他结构图纸