CAD频道
CAD图库
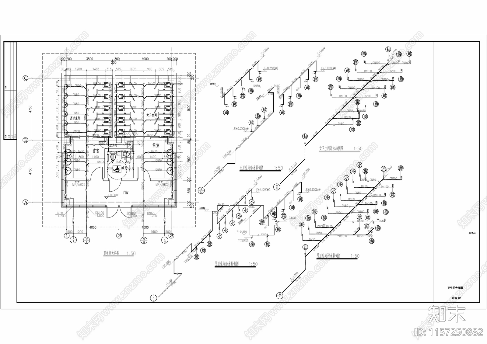
公园公共卫生间水电 施工图
1/
6
Previous
Next
公园公共卫生间水电CAD下载
ID: 1157250882
复制
上传作者
厚积薄发
上传时间
2024-04-05
文件大小
1.51M
设计风格:
现代简约
CAD版本:
CAD2004
包含文件:
CAD
授权
独家
立即下载
收藏
分享
举报
相关推荐
综合
公共空间
公共卫生间
其他公共空间
宿舍
门头
服务中心
活动中心
会展
母婴室
档案室