CAD频道
CAD图库
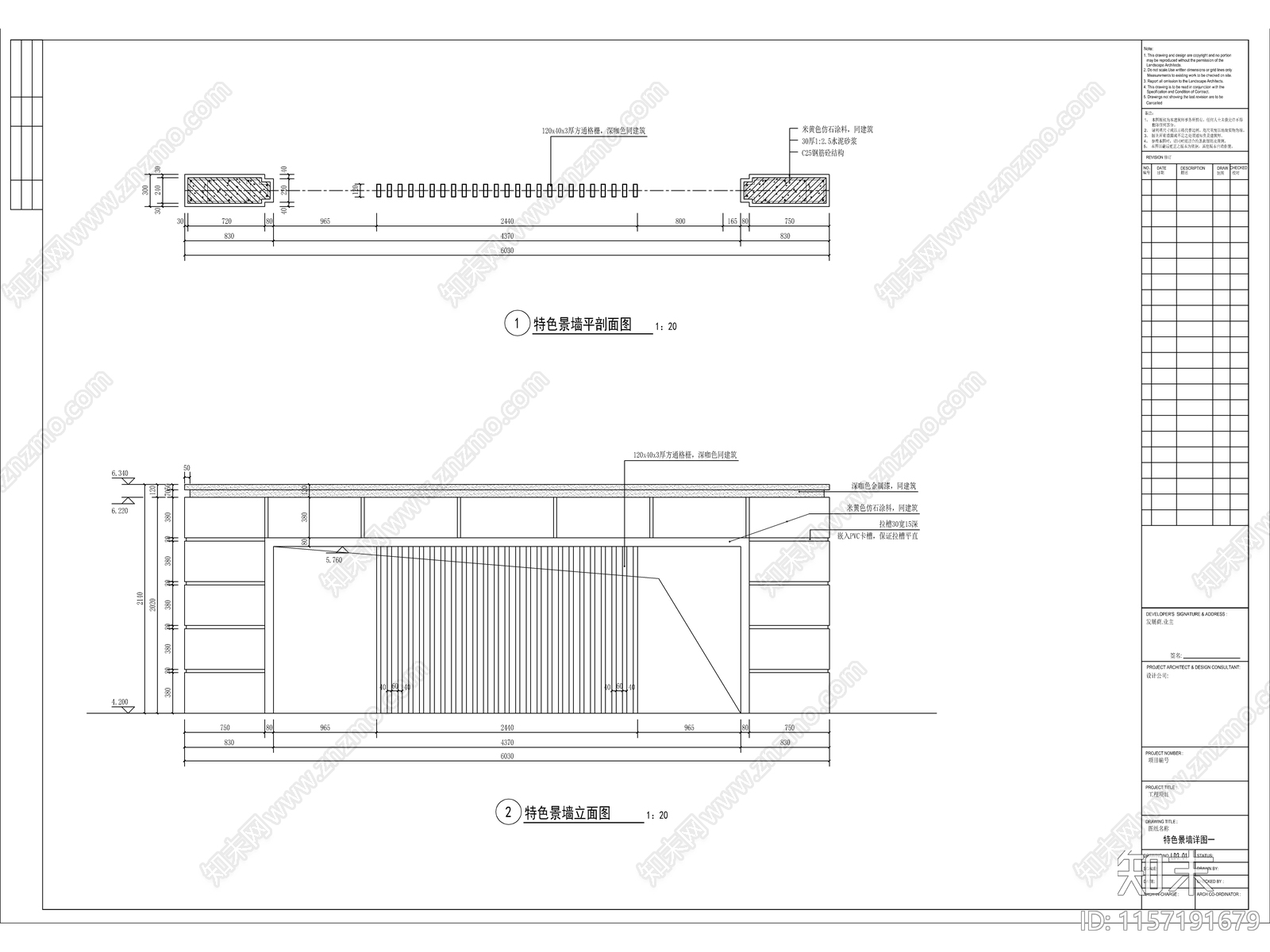
特色格栅对景墙详图 施工图
1/
2
Previous
Next
特色格栅对景墙详图CAD下载
ID: 1157191679
复制
上传作者
洋洋创设
上传时间
2024-04-04
文件大小
4.34M
设计风格:
--
CAD版本:
天正CAD3.0
包含文件:
CAD
授权
独家
立即下载
收藏
分享
举报
相关推荐
综合
景观小品
景墙
亭子
廊架
综合景观小品
雨棚
围墙
挡土墙
入口
景观坐凳