
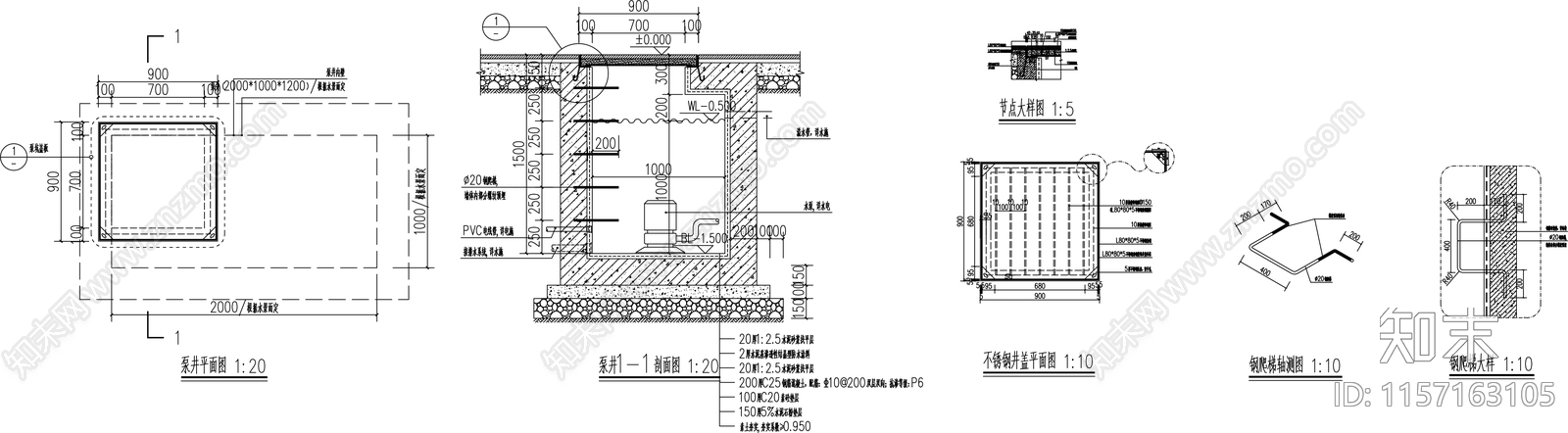
铺装上泵坑盖板构造CAD下载
ID: 1157163105
复制
上传作者
一粒糖@(粉回)
一粒糖@(粉回)上传时间2024-04-03
文件大小0.38M
设计风格:现代简约
CAD版本:天正CAD6.0
包含文件:CAD
授权独家
立即下载
收藏
分享
举报
相关推荐
综合
节点详图
水景
吊顶节点
墙面节点
地面节点
门节点
其他节点详图
建筑工程节点
景观小品
楼梯节点

一粒糖@(粉回)上传时间2024-04-03
文件大小0.38M
设计风格:现代简约
CAD版本:天正CAD6.0
包含文件:CAD
授权独家