1/3


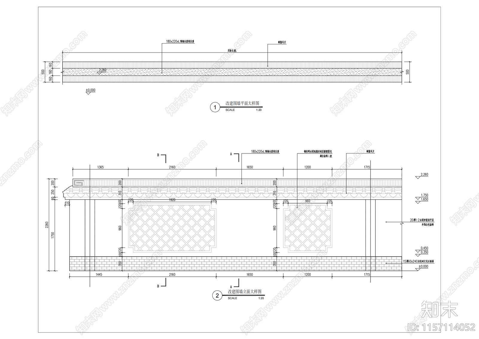
乡村围墙CAD下载
ID: 1157114052
复制
上传作者
遇见涛声
遇见涛声上传时间2024-04-03
文件大小12.3M
设计风格:现代简约
CAD版本:天正CAD4.0
包含文件:CAD
授权独家
立即下载
收藏
分享
举报
相关推荐
综合
建筑工程节点
建筑综合节点
屋顶
柱子节点
吊装节点
斗拱节点
楼板节点
女儿墙节点
塔吊节点
天窗节点


遇见涛声上传时间2024-04-03
文件大小12.3M
设计风格:现代简约
CAD版本:天正CAD4.0
包含文件:CAD
授权独家