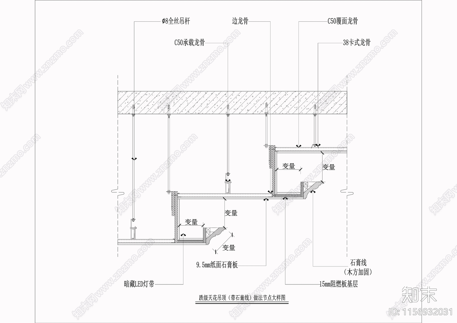
跌级吊顶带石膏线节点图施工图下载【ID:1156932031】

跌级吊顶带石膏线节点图CAD下载

ID: 1156932031
复制
上传作者
文刀小六文刀小六

上传时间2024-04-01

文件大小0.87M

设计风格:--

CAD版本:CAD2004

包含文件:CAD

授权独家

立即下载
收藏
分享
举报
相关推荐
综合
吊顶节点
方通吊顶
格栅吊顶
扣板吊顶
软膜天花
铝单板吊顶
GRG吊顶节点
石膏板吊顶
矿棉板吊顶