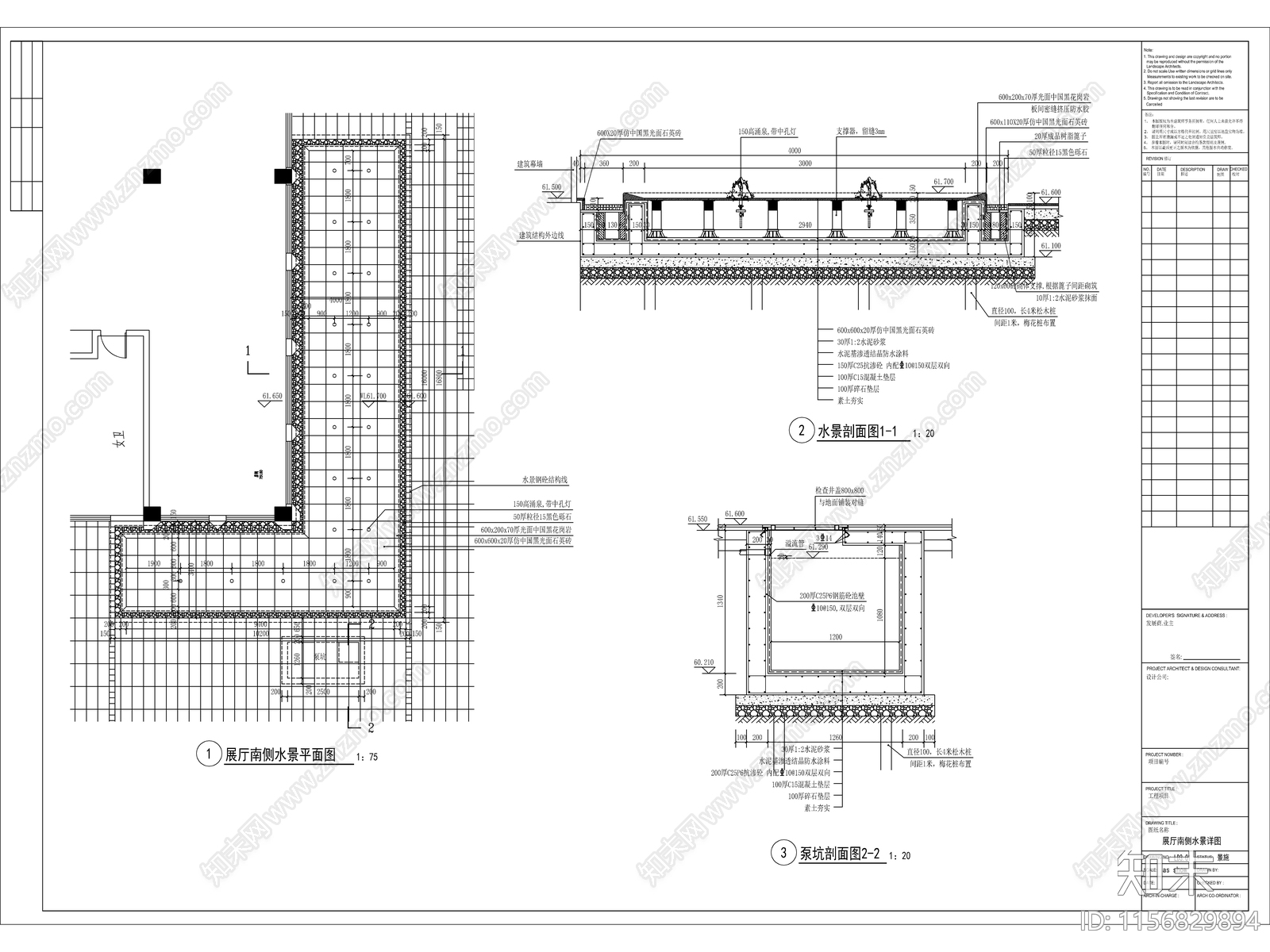
展厅镜面水景详图施工图下载【ID:1156829894】

展厅镜面水景详图CAD下载

ID: 1156829894
复制
上传作者
洋洋创设洋洋创设

上传时间2024-03-30

文件大小7.51M

设计风格:--

CAD版本:天正CAD3.0

包含文件:CAD

授权独家

立即下载
收藏
分享
举报
相关推荐
综合
节点详图
水景
吊顶节点
墙面节点
地面节点
门节点
其他节点详图
建筑工程节点
景观小品
楼梯节点