CAD频道
CAD图库
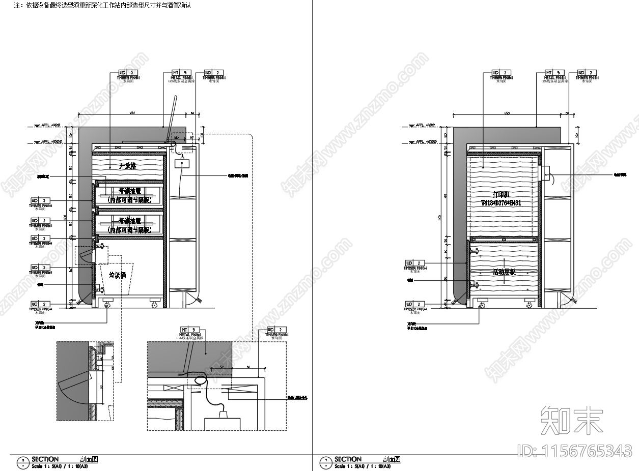
现代酒店礼宾台节点大样图 施工图 前台 家具节点详图
1/
3
Previous
Next
现代酒店礼宾台节点大样图CAD下载
ID: 1156765343
复制
上传作者
HAHA
上传时间
2024-03-29
文件大小
1.52M
设计风格:
--
CAD版本:
CAD2004
包含文件:
CAD
授权
独家
立即下载
收藏
分享
举报
相关推荐
综合
家具节点详图
前台节点
吧台节点
壁炉节点
柜体节点
卡座节点
综合家具节点