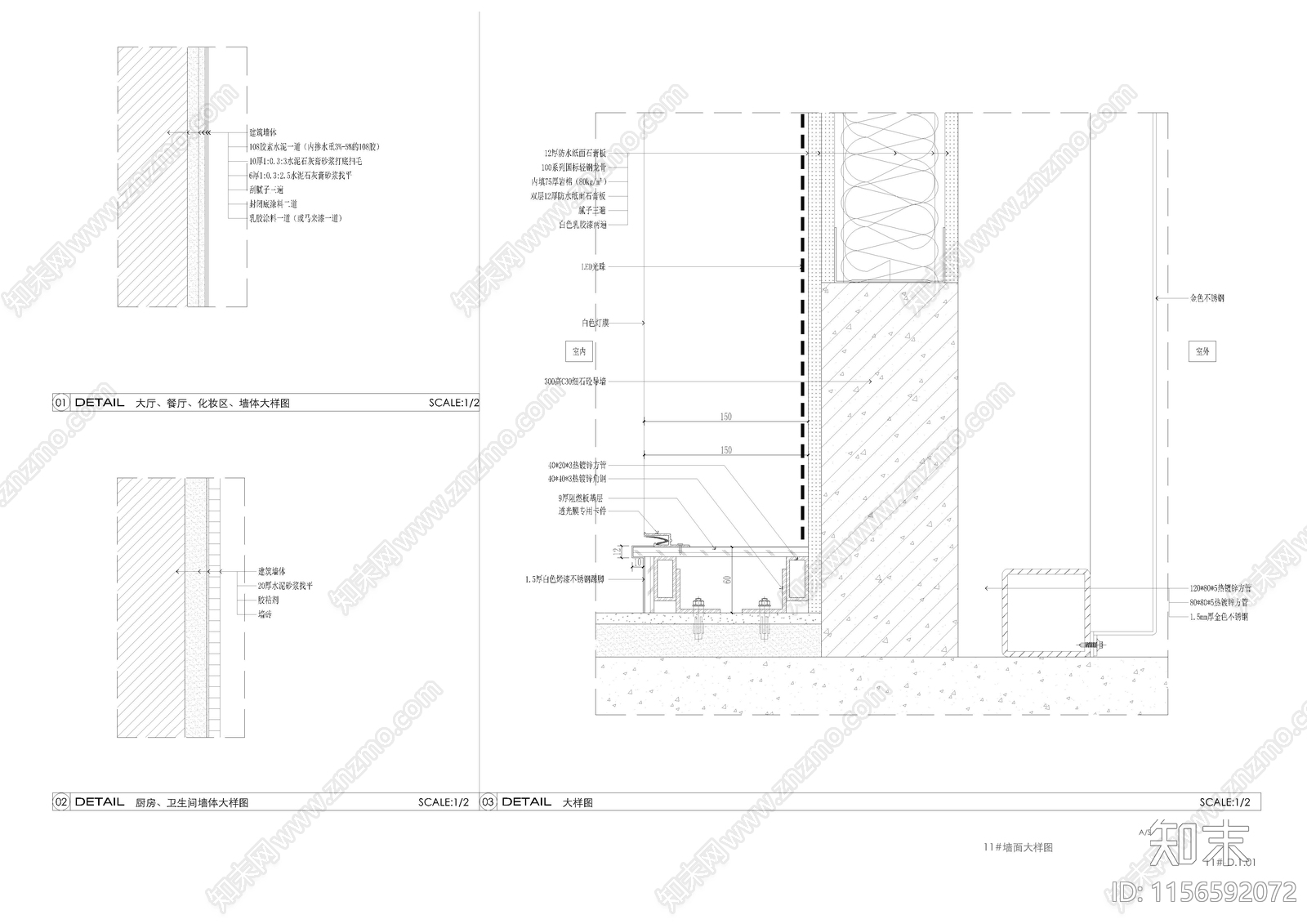
乳胶漆墙面做法大样图01施工图下载【ID:1156592072】

乳胶漆墙面做法大样图01CAD下载

ID: 1156592072
复制
上传作者
不良人(粉必回)不良人(粉必回)

上传时间2024-03-27

文件大小0.42M

设计风格:--

CAD版本:CAD2004

包含文件:CAD

授权独家

立即下载
收藏
分享
举报
相关推荐
综合
墙面节点
背景墙节点
轻钢龙骨隔墙
壁龛节点
隔音墙节点