CAD频道
CAD图库
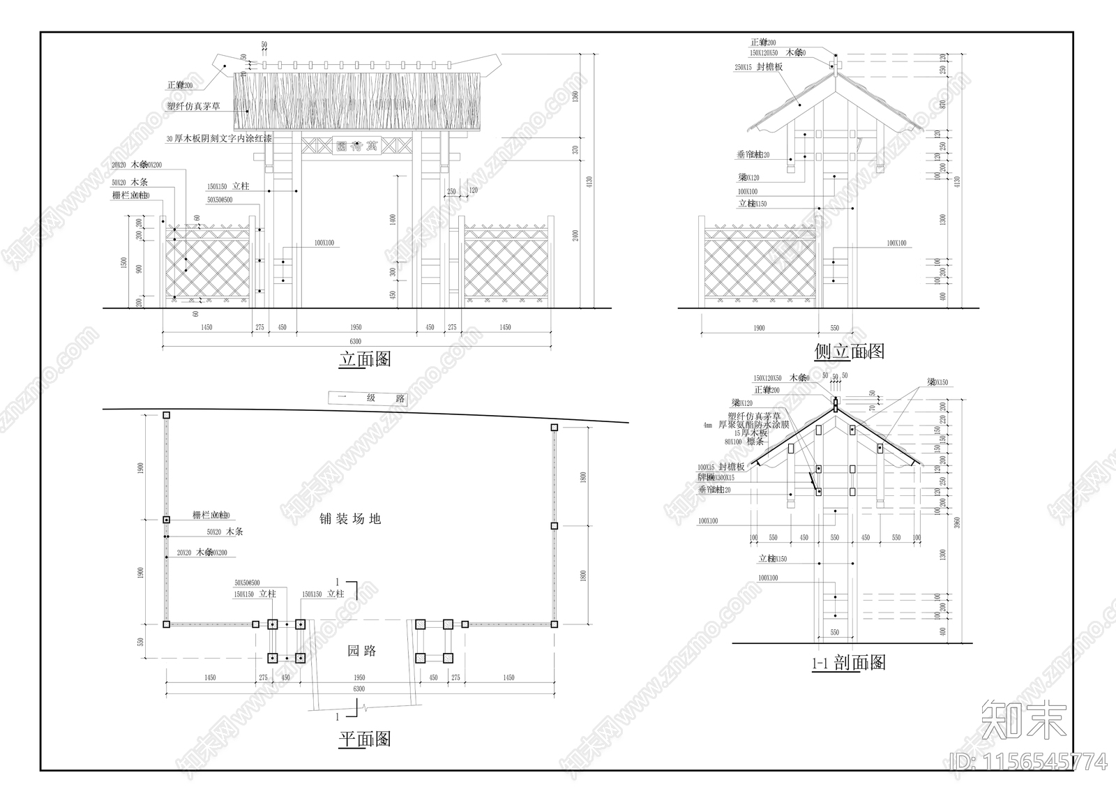
乡村竹子入口大门做法详图 施工图
1/
2
Previous
Next
乡村竹子入口大门做法详图CAD下载
ID: 1156545774
复制
上传作者
伤心太平洋
上传时间
2024-03-27
文件大小
0.27M
设计风格:
现代简约
CAD版本:
CAD2008
包含文件:
CAD
授权
普通
立即下载
收藏
分享
举报
相关推荐
综合
景观小品
入口
亭子
廊架
景墙
综合景观小品
雨棚
围墙
挡土墙
景观坐凳