CAD频道
CAD图库
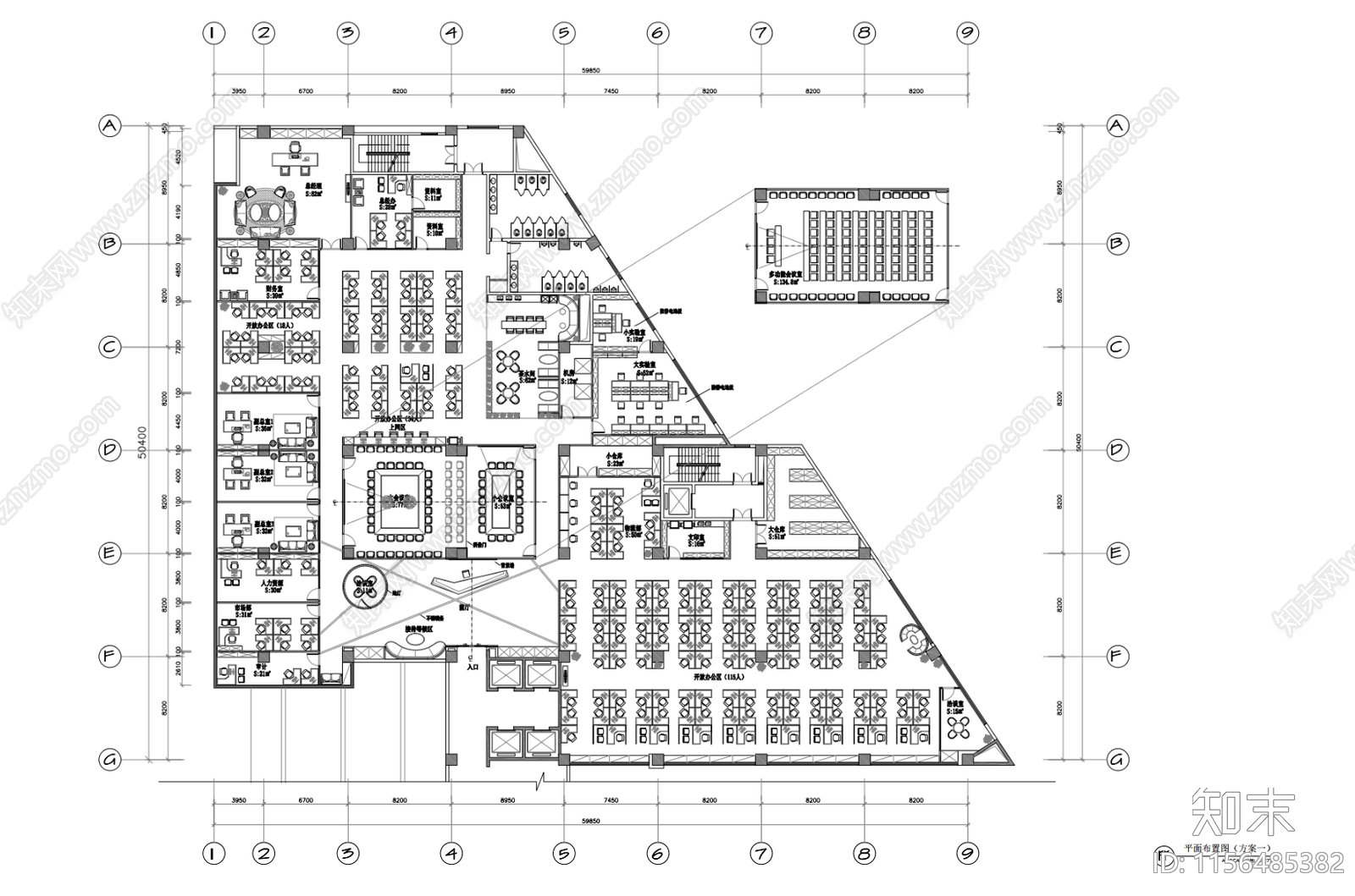
清华信息港办公室平面 施工图
1/
2
Previous
Next
清华信息港办公室平面CAD下载
ID: 1156485382
复制
上传作者
和造设社
上传时间
2024-03-26
文件大小
1.49M
设计风格:
现代简约
CAD版本:
CAD2007
包含文件:
CAD
授权
独家
立即下载
收藏
分享
举报
相关推荐
综合
平面图
工装平面图
景观平面图
规划平面图
其他平面图
小区平面图