CAD频道
CAD图库
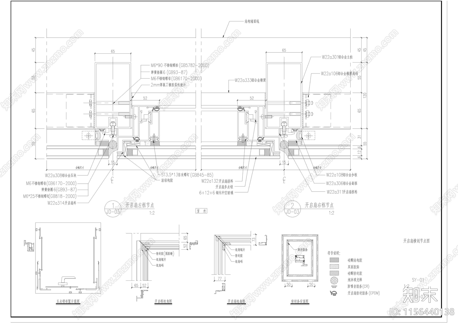
办公楼幕墙施工详图 施工图 节点 结构节点图
1/
8
Previous
Next
办公楼幕墙施工详图CAD下载
ID: 1156440138
复制
上传作者
<大橙子>
上传时间
2024-03-26
文件大小
3.69M
设计风格:
--
CAD版本:
CAD2015
包含文件:
CAD
授权
独家
立即下载
收藏
分享
举报
相关推荐
综合
结构节点图
幕墙结构节点
桁架
钢结构节点
混凝土节点
转换层
其他结构设计