1/2


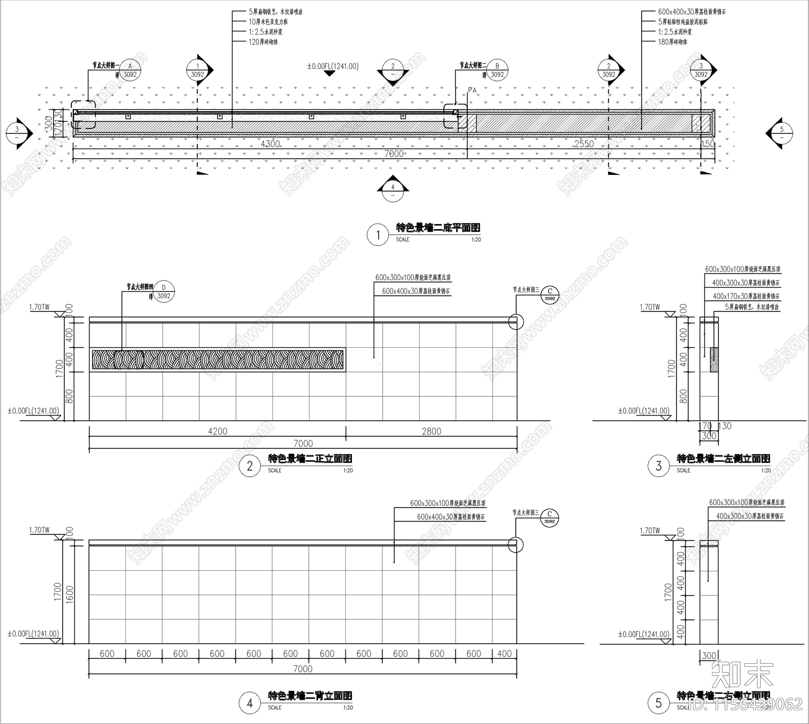
新中式主入口对景景墙详图CAD下载
ID: 1156429062
复制
上传作者
labububbbbb
labububbbbb上传时间2024-03-25
文件大小5.57M
设计风格:--
CAD版本:CAD2014
包含文件:CAD
授权普通
立即下载
收藏
分享
举报
相关推荐
综合
景观小品
景墙
亭子
廊架
综合景观小品
雨棚
围墙
挡土墙
入口
景观坐凳


labububbbbb上传时间2024-03-25
文件大小5.57M
设计风格:--
CAD版本:CAD2014
包含文件:CAD
授权普通