
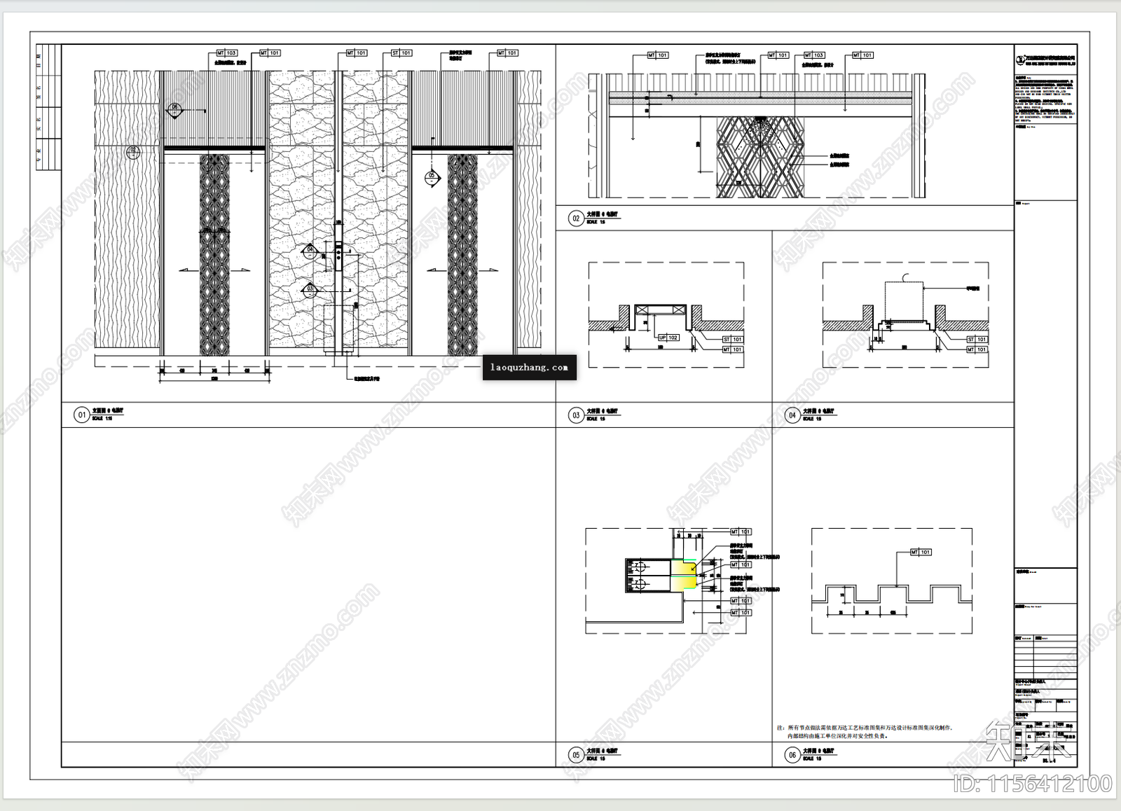
电梯到站灯大样图CAD下载
ID: 1156412100
复制
上传作者
色彩构成(互关粉必回)
色彩构成(互关粉必回)上传时间2024-03-25
文件大小1.97M
设计风格:--
CAD版本:CAD2014
包含文件:CAD
授权独家
立即下载
收藏
分享
举报
相关推荐
综合
节点详图
灯节点
吊顶节点
墙面节点
地面节点
门节点
其他节点详图
建筑工程节点
景观小品
楼梯节点

色彩构成(互关粉必回)上传时间2024-03-25
文件大小1.97M
设计风格:--
CAD版本:CAD2014
包含文件:CAD
授权独家